Appartamento trilocale 90mq

Dati annuncio : Vendita Appartamento, Mandello del Lario
In posizione centrale e strategica, a pochi passi da tutti i principali servizi, proponiamo in vendita spazioso trilocale posto al primo piano (senza ascensore) di un contesto residenziale tranquillo, circondato da un curato giardino condominiale di circa 500 mq.
L’appartamento si distingue per l´ampiezza degli ambienti e la praticità degli spazi interni.
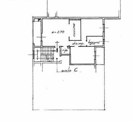
L’ingresso si apre su una zona giorno open space con cucina a vista e accesso diretto al balcone, che affaccia sul verde interno del condominio, creando un’atmosfera riservata e rilassante. A completare la zona giorno troviamo un locale ripostiglio/lavanderia già predisposto con attacchi per lavatrice e lavandino, perfetto come spazio di servizio o dispensa.
Il disimpegno poi ci accompagna nella zona notte, che offre una camera matrimoniale con balcone, una seconda camera di generose dimensioni e un bagno finestrato con vasca recentemente ristrutturato.
Gli spazi sono comodi, ben distribuiti e ideali per una famiglia o per chi desidera ambienti ariosi e funzionali.
La proprietà include cantina e box auto al piano terreno, oltre a posti auto condominiali disponibili.
L’abitazione è termoautonoma, caldaia appena sostituita, e inserita in un condominio ordinato e ben tenuto.
Una soluzione ideale per chi cerca la comodità del centro senza rinunciare alla tranquillità, alla vicinanza di tutti i servizi e al comfort di ampi spazi abitativi.
Per non perderti anteprime e contenuti utili seguici anche sulla nostra pagina Facebook ´´Lisolago Servizi Immobiliari´´ e su Instagram digitando lisolago_immobiliare, ti aspettiamo!
Per maggiori informazioni visita il nostro sito internet www.immobiliarelisolago.it oppure contattaci per fissare un appuntamento senza impegno. Puoi chiamarci allo 0341.702013 o puoi venire a trovarci nel nostro ufficio di Mandello, via F.lli Pini Garibaldini n. 25, tutti i giorni dal lunedì al venerdì, dalle ore 09.00 alle ore 19.00, il sabato dalle ore 09.00 alle ore 12.00.
- PropostaOffro
- ContrattoVendita
- Prezzo230.000,00 €
- Vani3
- Mq totali90
- Camere2
- Bagni1
- Classe energeticaF
- Classe energetica (ipe)17262
- Classe energetica (unità di misura)Kwh/m²a
- StatoRistrutturato
- AscensoreNo
- CucinaCucina a vista
- Tipologia immobileAppartamento
- ProvinciaLecco
- ComuneMandello del lario
- Data29-10-2025 05:36:14
- CodiceEA-40A60A











