Attico quadrilocale 199mq

Dati annuncio : Vendita Attico, Arco
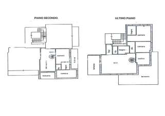
Ad Arco, in POSIZIONE TRANQUILLA e VICINA AI SERVIZI, proponiamo un ATTICO ESCLUSIVO su DUE LIVELLI, situato all’ULTIMO PIANO MANSARDATO con esposizione sud-est. ALTISSIME PERFORMANCE ENERGETICHE grazie alla certificazione dell´ Agenzia Klimahaus di Bolzano ! L´immobile è diviso in due appartamenti indipendenti che attualmente sono collegati con una scala interna ma FACILMENTE RIDIVISIBILI. Doppio ingresso indipendente, la parte superiore si apre su una luminosa e ampia zona giorno TUTTA ESPOSTA AL SOLE, collegata alla cucina e impreziosita da due GRANDI TERRAZZE che offrono spazio e luce naturale in abbondanza. Una delle terrazze è dotata di una splendida vetrata che ospita una zona pranzo da vivere tutto l’anno, ideale per momenti conviviali in ogni stagione, e una zona cottura con lavello esterna per le tue grigliate !
In ingresso un pratico ripostiglio e dal soggiorno si accede, attraverso un corridoio ben distribuito, a due camere da letto e due BAGNI ENTRAMBI FINESTRATI, offrendo così il massimo del comfort e della privacy.
Una comoda scala a chiocciola collega la zona giorno al piano inferiore, dove si sviluppa un ULTERIORE APPARTAMENTO con soggiorno, cucina, due comode camere da letto e un bagno finestrato, il tutto arricchito da ampio balcone e TERRAZZA VIVIBILE A SUD.-
Completano la proprietà due garage, di cui uno di ben 50 mq, due cantine spaziose e due posti auto esterni di proprietà.
Una soluzione abitativa rara, perfetta per chi cerca ampi spazi, riservatezza e finiture di pregio in un contesto esclusivo!
Per maggiori informazioni, contattaci al numero 0464/554431, invia una email a [email protected] o vieni a trovarci nel nostro ufficio vendite.
Intermediamo Italia - Via S. Caterina 8/A, Arco (TN)
- PropostaOffro
- ContrattoVendita
- Prezzo850.000,00 €
- Vani4
- Mq totali199
- Camere4
- Bagni3
- Posti auto2
- CucinaCucina abitabile
- Tipologia immobileAttico
- ProvinciaTrento
- ComuneArco
- Data15-11-2025 05:10:09
- CodiceEA-E51159











