Attico trilocale 137mq

Dati annuncio : Vendita Attico, Desenzano del Garda
Desenzano del Garda
Nuovo progetto per la realizzazione del RESIDENCE ´´SAN ZENO´´ che sorgerà a Rivoltella, Via San Zeno in ottima zona residenziale. Il complesso sarà costituito da 21 appartamenti con piscina condominiale, ampi garage e posti auto privati. Ci saranno varie tipologie quali TRILOCALI, QUADRILOCALI, PENTALOCALI ed ATTICI vista lago. Tutti gli appartamenti saranno serviti da ascensore ed avranno abbinati un box auto. Possibilità d´acquisto ulteriore posto auto esterno.
Il progetto è stato studiato nei minimi dettagli per conferire un DESIGN MODERNO, ELEVATO CONFORT e MASSIMO RISPARMIO ENERGETICO.
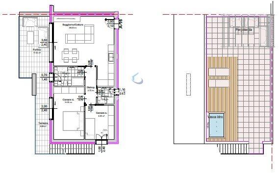
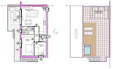
Attico trilocale al secondo ed ultimo piano, composto da soggiorno con cucina a vista, disimpegno, due camere e due bagni. L´appartamento avrà un´ampia terrazza coperta con una scala privata che porterà al piano sundek con pergola e vasca idromassaggio privata. Completa la proprietà un garage nell´interrato.
Consegna prevista 2026!
PREZZO 560.000 euro + Iva di legge
Per maggiori informazioni contattateci
Gardaffare 030.9905461.
Rif. 25-26.
- PropostaOffro
- ContrattoVendita
- Prezzo560.000,00 €
- Vani3
- Mq totali137
- Camere2
- Bagni2
- Classe energeticaA3
- CucinaAngolo cottura
- PanoramaVista lago
- BoxBox singolo
- Tipologia immobileAttico
- ProvinciaBrescia
- ComuneDesenzano del garda
- Data11-12-2025 06:38:19
- CodiceEA-7F9ECC











