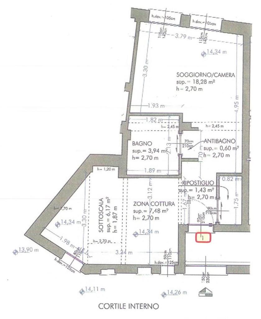
bilocale 43mq
240.000,00 €
0 Piace
0 Piace
Dati annuncio : Vendita Bivani, Pietra Ligure
Pietra Ligure, posto al piano terra di un complesso turistico dotato di piscina condominiale, si vende un bilocale ristrutturato con allegato un posto auto di proprietà esclusiva. Come anticipato l´appartamento é stato ristrutturato ma non arredato, dista a trecento metri dalla spiaggia con percorso totalmente pianeggiante. Classe Energetica: C - IPE: 106.08kWh/mq anno
- PropostaOffro
- ContrattoVendita
- Prezzo240.000,00 €
- Vani2
- Numero piani2
- Piano1
- Mq box11
- Mq totali43
- Camere1
- Bagni1
- Classe energeticaC
- Classe energetica (ipe)106.08
- StatoRistrutturato
- Tipo costruzioneResidenziale
- CucinaAngolo cottura
- GiardinoComune
- RiscaldamentoAutonomo
- BoxPosto auto
- Spese condominiali1600
- Cadenza spese condominialiMensili
- ProvinciaSavona
- ComunePietra ligure
- Data03-12-2025 05:28:18
- CodiceEA-25089E






