Box monolocale 14mq
35.000,00 €
0 Piace
0 Piace
Dati annuncio : Vendita Box, Firenze
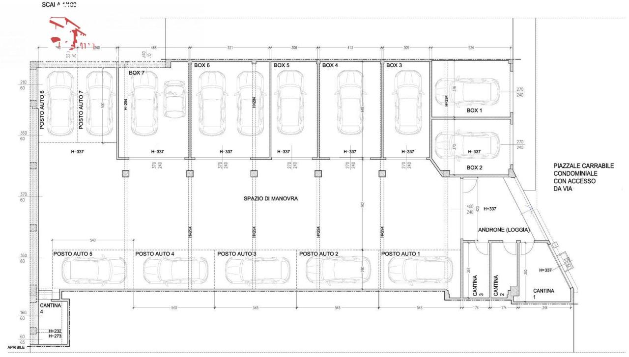
Firenze, pressi viale Corsica, vendesi posto auto coperto di mq.14,17 (5,45x2,60) con accesso da piazzale carrabile condominiale (numero 2, 3 e 4 in planimetria). Nello stesso contesto ci sono in vendita anche altri posti auto, garage e cantine. Foto non rappresentative. Vende privato. Euro 35.000 GAR77 - SC9502265
- PropostaOffro
- ContrattoVendita
- Prezzo35.000,00 €
- Vani1
- Numero piani6
- PianoI
- Mq totali14
- Classe energeticaG
- StatoRistrutturato
- AscensoreNo
- CantinaNo
- ArrediNo
- Cadenza spese condominialiAnnuali
- ProvinciaFirenze
- ComuneFirenze
- Data20-11-2025 05:46:27
- CodiceEA-0F40BF

Caterina pirrone immobiliare
Viale Europa - Firenze





