E' in corso la verifica sull'accuratezza dei dati del post
Box monolocale 15mq
100,00 €
0 Piace
0 Piace
Dati annuncio : Affitto Box, Verona
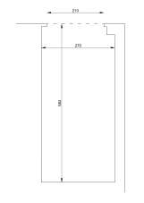
PONTE CRENCANO - GARAGE SINGOLO IN LOCAZIONE Situato a pochi metri dalla piazza principale del quartiere, si propone in locazione garage singolo con ottima area di manovra; misure interne 5,50 metri di profondit e 2,70 metri di larghezza, apertura basculante di 2,10 metri Disponibile da subito, spese condominiali comprese nel canone di locazione - SC
- PropostaOffro
- ContrattoAffitto
- Prezzo100,00 €
- Anno1967
- Vani1
- Numero piani5
- Mq totali15
- StatoBuono
- AscensoreNo
- CantinaNo
- ArrediNo
- Cadenza spese condominialiAnnuali
- ProvinciaVerona
- ComuneVerona
- CodiceEA-DEE2DC