Box monolocale 31mq
69.000,00 €
0 Piace
0 Piace
Dati annuncio : Vendita Box, Firenze
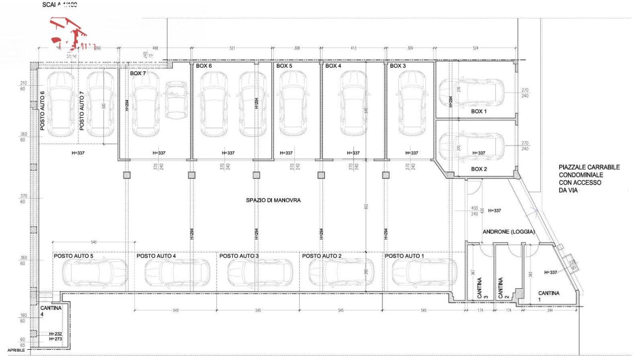
Firenze, pressi viale Corsica, vendesi garage di mq.31 con accesso da piazzale carrabile condominiale con cancello (numero 7 in planimetria). Nello stesso contesto ci sono in vendita anche altri garage, posti auto e cantine. Foto non rappresentative. Vende privato. Euro 69.000 GAR76 - SC9502278
- PropostaOffro
- ContrattoVendita
- Prezzo69.000,00 €
- Vani1
- Numero piani6
- PianoI
- Mq totali31
- Classe energeticaG
- StatoRistrutturato
- AscensoreNo
- CantinaNo
- ArrediNo
- Cadenza spese condominialiAnnuali
- ProvinciaFirenze
- ComuneFirenze
- Data20-11-2025 05:46:27
- CodiceEA-229C03

Caterina pirrone immobiliare
Viale Europa - Firenze





