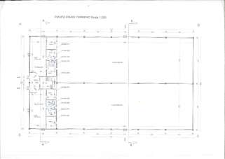
Capannone 2200mq
180.000,00 €

0 Piace
0 Piace
Dati annuncio : Vendita Capannone, Montechiaro d'Asti
Vendesi terreno per la costruzione di un capannone di 2.200 mq con cordolo perimetrale e plinti antisismici già realizzati: volendo prefabbricato pronto da montare in un´area di 9.000 mq comoda alla Asti-Chivasso. Progetto e opere di urbanizzazione già pagati. Distanza dal casello di Asti Ovest dell´autostrada A 21: 13,5 Km.
- PropostaOffro
- ContrattoVendita
- Prezzo180.000,00 €
- Mq totali2200
- Tipologia immobileCapannone
- ProvinciaAsti
- ComuneMontechiaro d'asti
- Data12-10-2025 05:58:00
- CodiceEA-DFAAAF








