Capannone 2500mq

Dati annuncio : Affitto Capannone, Bonate Sopra
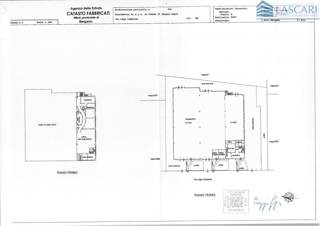
Situato nelle immediate vicinanze dell´uscita dell´asse interurbano, proponiamo capannone singolo di circa 2.000 mq, completo di servizi e dotato di: impianto di illuminazione, impianto elettrico, riscaldamento, predisposizione per carroponte, allarme perimetrale e ufficio spedizioni. L´immobile è composto da tre campate collegate tra loro. Le prime due campate presentano un’altezza sotto trave di 6,53 m (altezza al tegolo 7,78 m) e dispongono di cinque portoni carrabili (larghezza 5,40 m, altezza 4,78 m).
La terza campata, situata sotto la zona uffici, ha un’altezza utile di 3,30 m e un portone carrabile (larghezza 4,20 m, altezza 2,90 m). Il lotto è servito da tre accessi carrabili.
Gli uffici al piano primo, di 500 mq, sono di ottima immagine e completi di tutti gli impianti. Sono suddivisi con pareti mobili attrezzate, pavimento galleggiante, rete dati, impianto elettrico, raffrescamento, rilevatori di fumo, doppi servizi e cucinetta.
Il capannone è riscaldato con radiatori Robur alimentati da impianto GPL. Ampio parcheggio interno e piazzale privato completano la proprietà.
Nel contratto di locazione è previsto deposito cauzionale tramite fideiussione bancaria pari a 6 mensilità.
- PropostaOffro
- ContrattoAffitto
- Prezzo11.375,00 €
- Mq totali2500
- Bagni3
- Classe energeticaD
- Classe energetica (ipe)3445
- Classe energetica (unità di misura)Kwh/m³a
- CucinaCucinotto
- GiardinoPrivato
- Tipologia immobileCapannone
- ProvinciaBergamo
- ComuneBonate sopra
- Data04-12-2025 05:30:24
- CodiceEA-DF3631











