Capannone 310mq
5.200,00 €
0 Piace
0 Piace
Dati annuncio : Affitto Capannone, Lucca
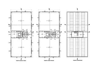
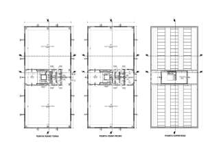
Rif.Ag. F033J - F033J S.FILIPPO (Lucca) - Su strada di importante passaggio Vi proponiamo in affitto capannone ad uso commerciale di testa di nuova realizzazione con generose superfici vetrate che lo rendono luminosissimo - E´ composto da unico vano open space oltre ad antibagno e oppi servizi per una superficie complessiva di mq. 310 - Completa questa proprietà il generoso piazzale esterno a corredo dell´intero fabbricato destinato al parcheggio degli ospiti - Classe energetica A4 - Per motivi di riservatezza, la geolocalizzazione dell´immobile indica la zona in particolare, ma non l´indirizzo esatto dell´immobile - SC8856881
- PropostaOffro
- ContrattoAffitto
- Prezzo5.200,00 €
- Numero piani2
- PianoT
- Mq totali310
- Bagni1
- StatoNuovo
- AscensoreSi
- CantinaNo
- ArrediNo
- Cadenza spese condominialiAnnuali
- ProvinciaLucca
- ComuneLucca
- Data15-02-2026 05:04:52
- CodiceEA-C51CBC









