Capannone 380mq

3.000,00 €
0 Piace
0 Piace

Dati annuncio : Affitto Capannone, Lucca

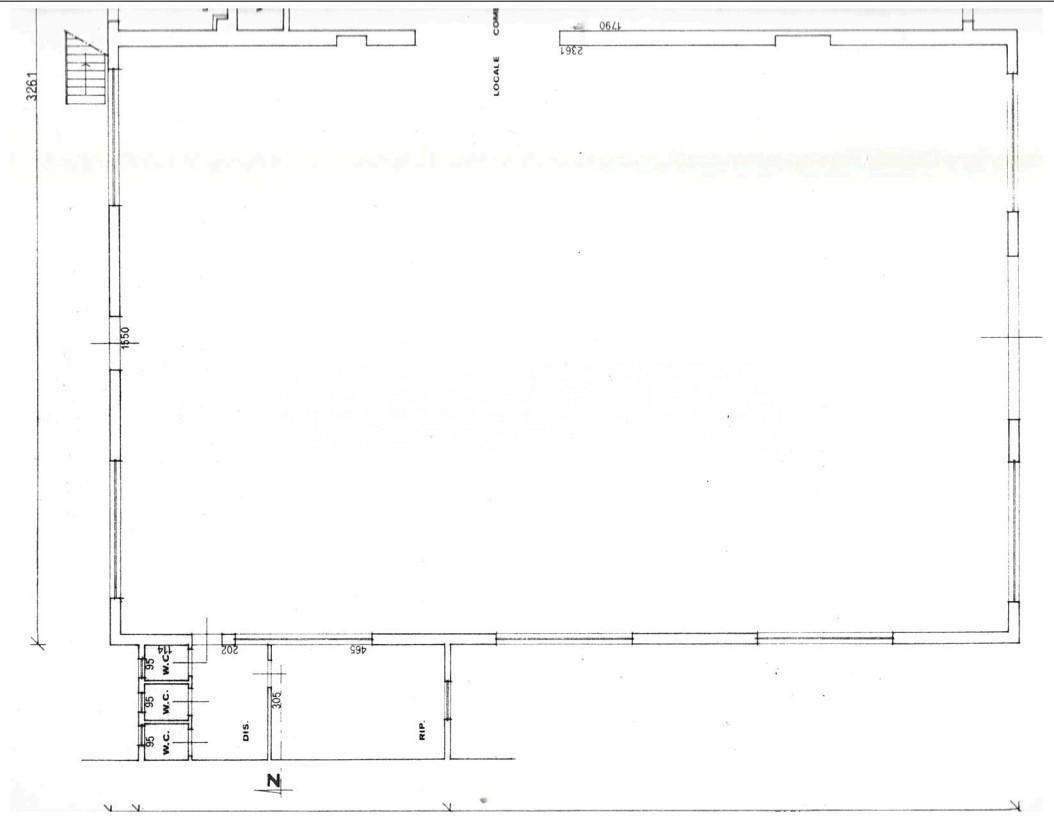
Rif.Ag. F010K - F010K - Zona sud - A breve distanza dalla città, in prossimità di strada di grande passaggio veicolare con possibilità di parcheggio e in ottima zona commerciale proponiamo in affitto questo capannone commerciale di circa 380 mq. attualmente allo stato grezzo, composto di un unico grande vano con altezza oltre 5 mt., di un locale spogliatoio e due servizi igienici - A corredo ampio pargheggio a servizio delle unità immobiliari confinanti - Edificio di classe G indice di prestazione energetica globale 218,0 kWh/m2 anno - Info in agenzia - SC8781987

  • PropostaOffro
  • ContrattoAffitto
  • Prezzo3.000,00 €
  • Numero piani1
  • PianoT
  • Mq totali380
  • Classe energetica (ipe)160 kwh/m2
  • StatoBuono
  • AscensoreNo
  • CantinaNo
  • ArrediNo
  • Cadenza spese condominialiAnnuali
  • ProvinciaLucca
  • ComuneLucca
  • Data18-08-2025 06:08:45
  • CodiceEA-127CEF