Capannone 631mq
        3.500,00 €
    

 0 Piace
 0 Piace
Dati annuncio : Affitto Capannone, Sesto San Giovanni
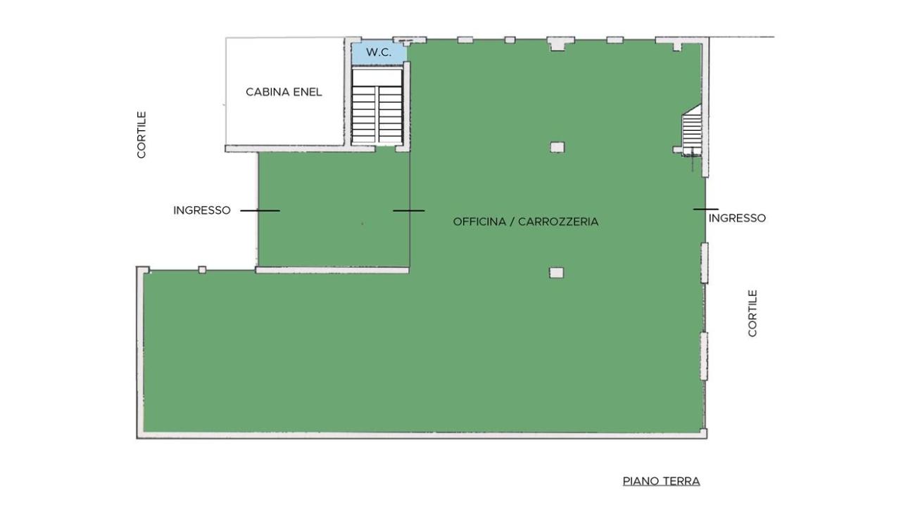
Sesto San Giovanni (MI) - Adiacenze Stazione F.S., Rondinella, Media World - in complesso artigianale/commerciale/industriale a 600m dalla fermata metropolitana MM1 I°maggio, proponiamo in locazione locali artiginali C/3 con annessi uffici e deposito magazzino. ideale per attività quali officine/carrozzerie, attività artigianali in generale e di lavorazione di prodotti semilavorati trasformati poi in manufatti finalizzati alla vendita. 
Canone Mensile Euro 3.500+spese oltre IVA di legge. Consegna giugno 2026. 
Focus altezze locali industirali/artigianali/uffici
h min m4.35 h max m6,95 Locali artigianali
h 3m uffici
- PropostaOffro
- ContrattoAffitto
- Prezzo3.500,00 €
- Mq totali631
- Classe energeticaG
- Classe energetica (ipe)175
- Classe energetica (unità di misura)Kwh/m²a
- Tipologia immobileCapannone
- ProvinciaMilano
- ComuneSesto san giovanni
- Data06-09-2025 05:06:45
- CodiceEA-9A10D0

 
    










