Capannone 6320mq

Dati annuncio : Affitto Capannone, Grassobbio
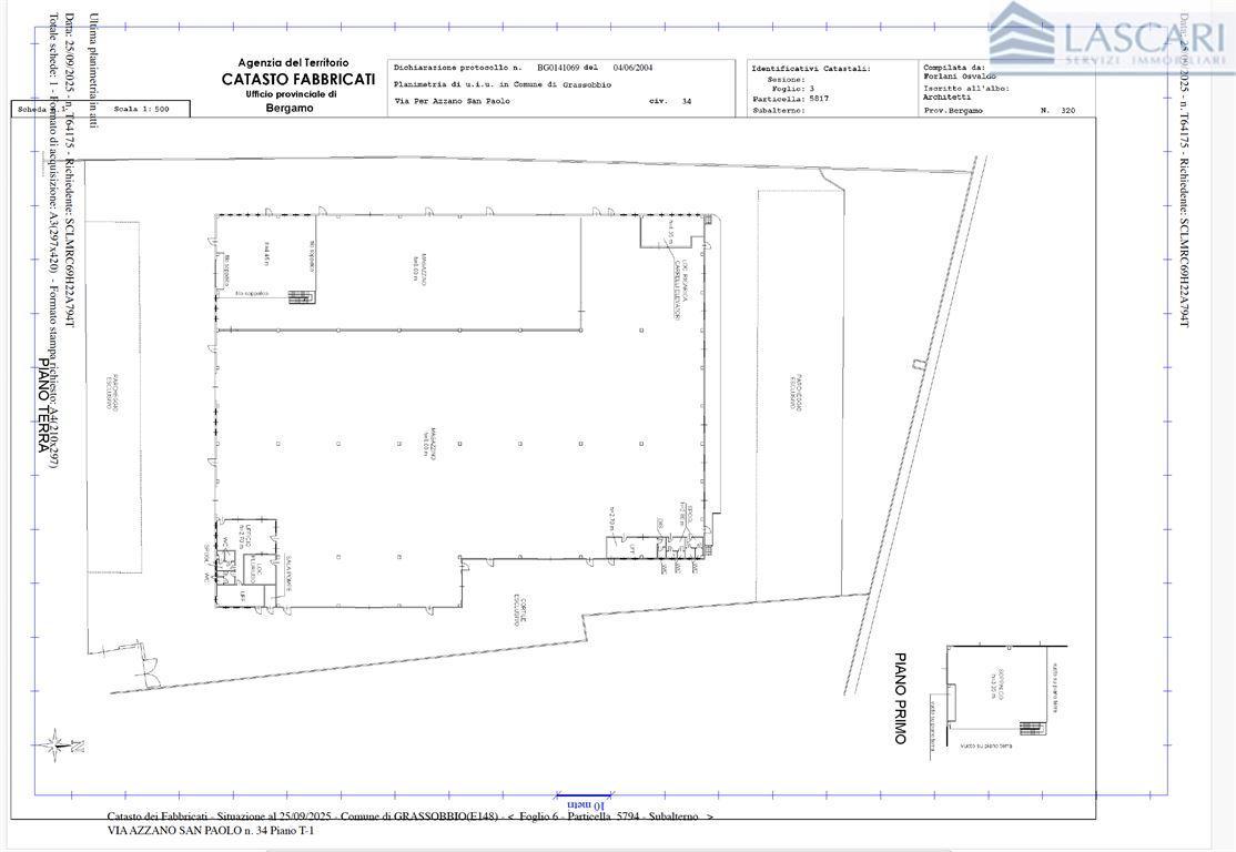
Posizione strategica grazie all’ubicazione che garantisce rapidi collegamenti con l’autostrada A4, la viabilità principale e l’Aeroporto di Orio al Serio. Fronte autostrada si propone in locazione capannone uso deposito di mq. 6.320 con altezza sottotrave di mt. 8,50, dotato di 8 portoni, comprensivo di 2 corpi uffici e servizi di complessivi mq. 350 e ampio locale ricarica muletti. L´immobile è inoltre dotato di bocche di carico pneumatiche con tettoia. Ampia area esterna per la manovra degli automezzi con parcheggi delimitati. Il capannone si trova in ottimo stato di manutenzione ed è dotato di impianto elettrico con corpi illuminanti, impianto rilevatori fumi e impianto antincendio. Gli uffici hanno l´impianto di riscaldamento- raffrescamento con pompa di calore. Il contratto di locazione prevede deposito cauzionale tramite fidejussione pari ad un anno di canone.
- PropostaOffro
- ContrattoAffitto
- Prezzo28.500,00 €
- Mq totali6320
- StatoOttimo stato
- Tipologia immobileCapannone
- ProvinciaBergamo
- ComuneGrassobbio
- Data15-10-2025 05:59:10
- CodiceEA-7DA8F0











