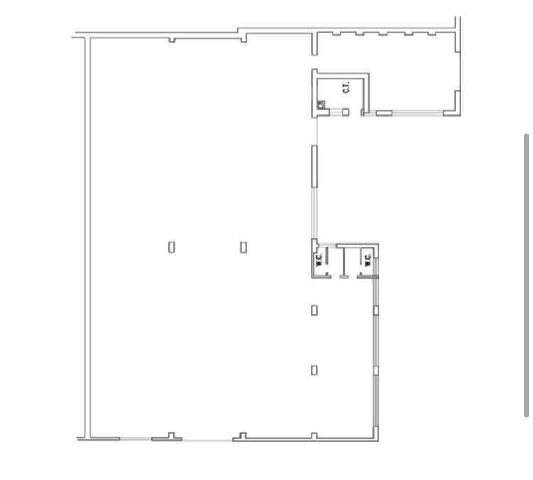
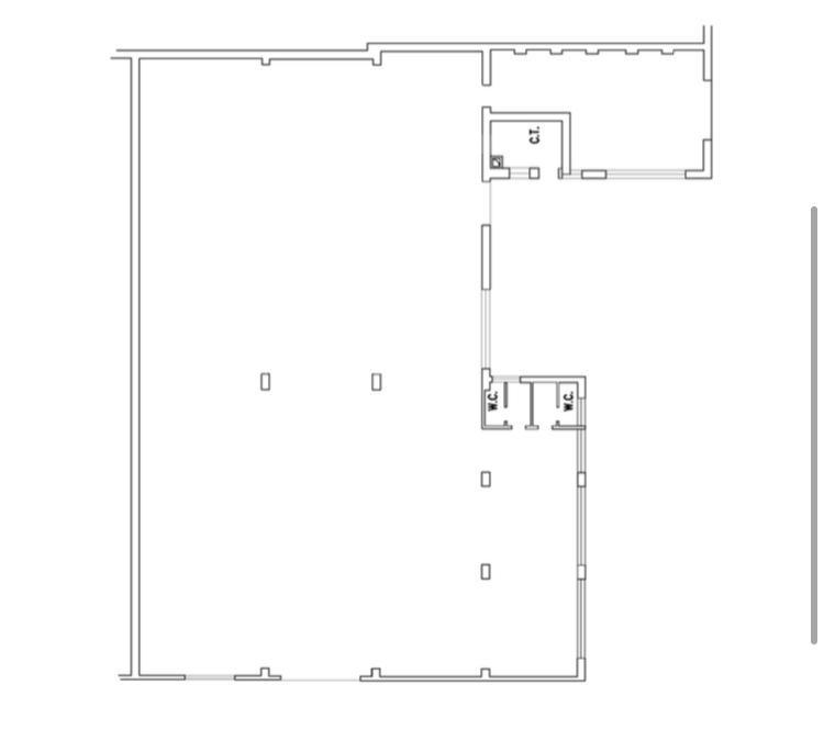
Capannone 715mq
3.750,00 €

0 Piace
0 Piace
Dati annuncio : Affitto Capannone, Bologna
capannone in zona centro commerciale il PIANETA, con area esterna per carico scarico e parcheggio privato.
- PropostaOffro
- ContrattoAffitto
- Prezzo3.750,00 €
- Mq totali715
- Bagni2
- Classe energeticaG
- Tipologia immobileCapannone
- ProvinciaBologna
- ComuneBologna
- Data18-08-2025 05:21:08
- CodiceEA-2594E2






