Capannone 823mq

Dati annuncio : Vendita Capannone, Stezzano
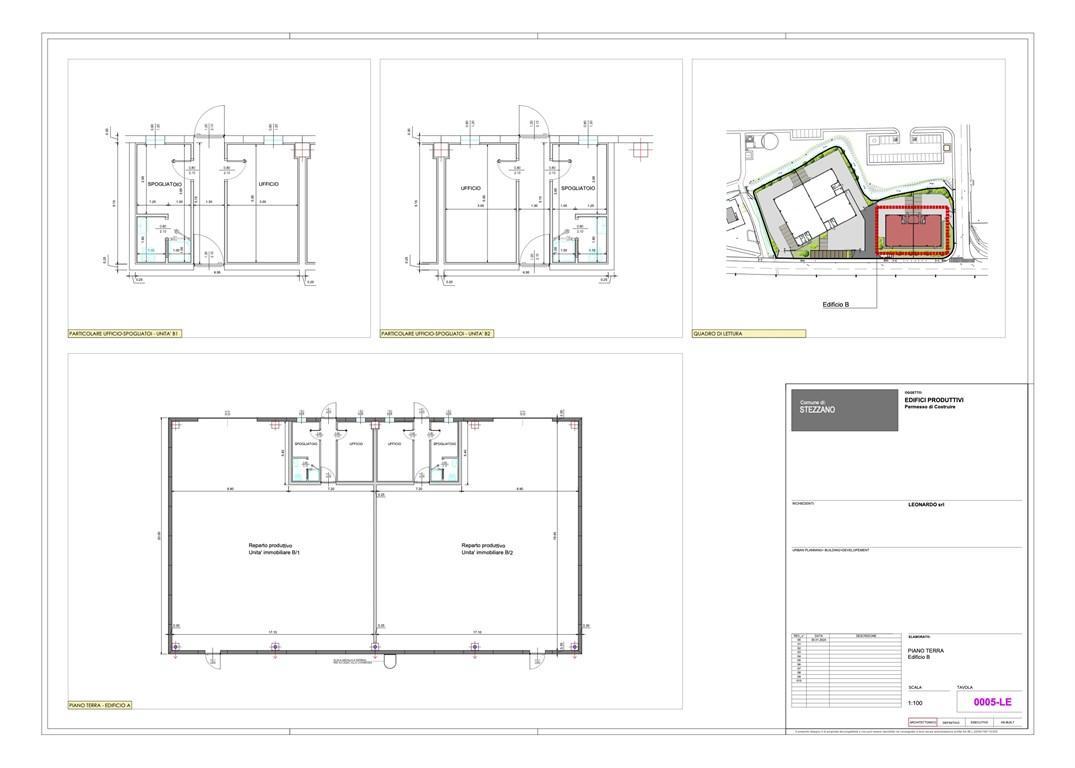
Posizione strategica per la vicinanza al casello autostradale Dalmine, alla tangenziale sud ed al centro commerciale Le Due Torri. In recente contesto produttivo capannone in corso di costruzione avente le seguenti caratteristiche: lotto di mq. 1.922, superficie commerciale mq. 822,23, superficie reparto produttivo mq. 616,80, uffici, bagni e spogliatoi: mq. 83,20, superficie piazzale: mq. 689,80, superficie area verde: mq. 445, n. 8 posti auto per un totale di mq. 87,50. Altezza utile sottotegolo mt. 10. Struttura prefabbricata antisismica, REI 120, pannelli perimetrali con spessore cm. 30. Pavimentazione interna eseguita in C.A. spessore cm. 15 con finitura al quarzo. Manto di copertura realizzato con pannelli in polistirene EPS 120 spessore pari a 140 mm, manto impermeabilizzante con lucernari apribili. Sarà installato impianto fotovoltaico nel rispetto della normativa vigente e posto sulla copertura dell’edificio. 2 portoni carrali di mt. 5,00 X 5,00. Impainto elettrico base con corpi illuminanti a led. Corpo uffici, bagni e spogliatoi con pavimentazione in gres porcellanato, controsoffittatura, serramenti esterni in alluminio anodizzato, impianto elettrico, impianto luci led, impianto di riscaldamento/condizionamento con pompa di calore con boiler elettrico per l´acqua calda. Impianto antincendio. Le parti esterne sono delimitate con muretti e grigliati. Pavimentazione esterna con asfalto bituminoso. La descrizione dei lavori di realizzazione è meglio specificata nel capitolato descrittivo delle opere. La struttura verrà realizzata secondo il progetto con possibilità di modifiche richieste dal futuro utilizzatore, con la possibilità di aumentare la superficie degli uffici e di creare delle superfici impalcate. Attualmente il progetto prevede la suddivisione in due unità.
- PropostaOffro
- ContrattoVendita
- Prezzo1.070.000,00 €
- Mq totali823
- Posti auto8
- GiardinoPrivato
- Tipologia immobileCapannone
- ProvinciaBergamo
- ComuneStezzano
- Data18-08-2025 05:21:08
- CodiceEA-483D61











