Capannone quadrilocale 5362mq
1,00 €
0 Piace
0 Piace
Dati annuncio : Affitto Capannone , Colonnella
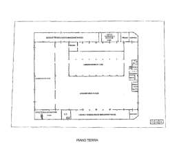
Colonnella (TE) - in contrada Vallecupa, a pochi km dal casello dell’autostrada A14 di San Benedetto del Tronto, capannone di mq 4916 coperti con piazzale di mq 4464, ultimato nel 2006 con struttura prefabbricata a travi e pilastri in cemento armato. L’edificio si sviluppa su un unico livello ed è costituito da diversi ambienti destinati a laboratorio, locali tecnologici ed un blocco servizi con spogliatoi e wc. Le altezze interne variano da m. 9 a m. 6,5. Canone di locazione da concordare. IMMOBILE ANCHE IN VENDITA AL PREZZO DI EURO 1.750.00,00. Rif. 6313 DiLeoImmobiliare
- PropostaOffro
- ContrattoAffitto
- Prezzo1,00 €
- Anno2006
- Vani4
- Numero piani1
- Mq totali5362
- Classe energeticaF
- Classe energetica (ipe)207.0
- StatoBuono
- AscensoreNo
- TerrazzoNo
- GiardinoNs
- CantinaNo
- Tipologia immobileCapannone
- ProvinciaTeramo
- ComuneColonnella
- Data04-10-2025 06:17:28
- CodiceEA-764AB0











