Casa Indipendente 12 vani 510mq

Dati annuncio : Vendita Casa Indipendente, Cesena
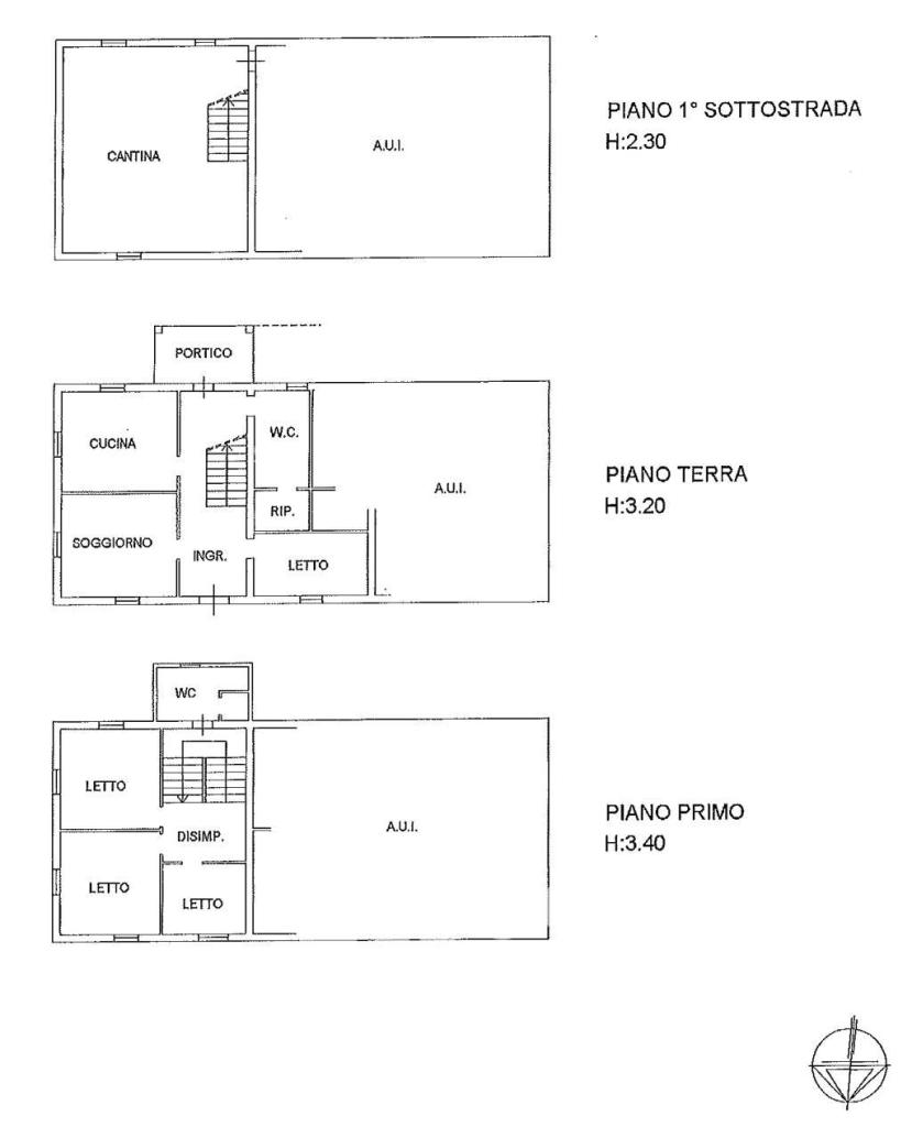
CESENA nel quartiere Cervese sud su strada a fondo cieco a basso traffico e solo residenziale, a ridosso della città e vicino a tutti i servizi e alla viabilità principale vendiamo una villa bifamiliare immersa in un parco di 2500 mq con piante secolari. Il complesso immobiliare è costituito da due unità residenziali e due fabbricati ad uso servizi. Attualmente la soluzione è strutturata su due piani abitativi : zona giorno al piano terreno e zona notte al piano primo, cantine al piano interrato. Il fabbricato in muratura presenta lesioni alle strutture quindi è consigliata la demolizione e ricostruzione. La soluzione è ideale per la realizzazione di una importante villa bifamiliare o un piccolo complesso condominiale immerso in un polmone verde garanzia di privacy e benessere. E´ possibile utilizzare tutti gli incentivi attualmente previsti per le ristrutturazioni edilizie.
Soluzione unica per posizione e contesto.
Per informazioni ACASA_CESENA : Andrea Placuzzi tel 328/8255174 tutte le proposte su ACASA.INFO
NB le presenti informazioni non costituiscono elemento contrattuale.
- PropostaOffro
- ContrattoVendita
- Prezzo330.000,00 €
- Vani12
- Numero piani2
- Mq totali510
- Camere8
- Bagni4
- Classe energeticaG
- Classe energetica (ipe)999
- Classe energetica (unità di misura)Kwh/m²a
- CucinaCucina abitabile
- GiardinoPrivato
- Tipologia immobileCasa indipendente
- ProvinciaForli-cesena
- ComuneCesena
- Data04-07-2025 05:13:47
- CodiceEA-CB3C2A











