Casa Indipendente 8 vani 266mq

Dati annuncio : Vendita Casa Indipendente, Castel Bolognese
In posizione strategica a Castel Bolognese, proponiamo in vendita questa splendida villa di circa 200 mq con ampio giardino privato di oltre 2.000 mq.
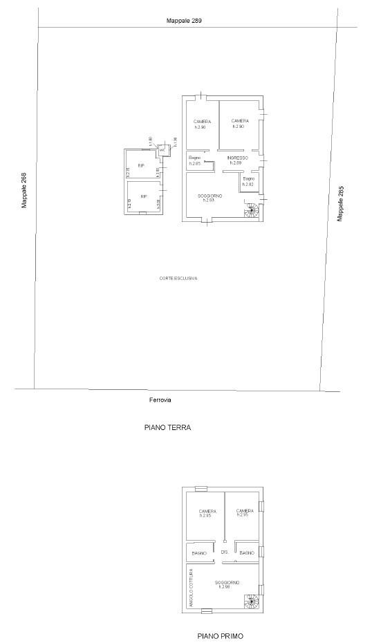
L’immobile, attualmente suddiviso in due appartamenti indipendenti, è ideale sia per due nuclei familiari che per chi desidera un´unica ampia abitazione. Attualmente la casa è in fase di completa ristrutturazione, ma si presenta già in ottimo stato strutturale e funzionale, con finiture moderne e impianti all’avanguardia. Al piano terra, dove c´è l´ingresso principale, troviamo un ampia sala con cucina a vista, due bagni e due grandi camere matrimoniali. L´appartamento del piano superiore è molto simile come struttura, con una luminosa zona giorno completamente open space, due camere matrimoniali, un bagno e una zona lavanderia (con già tutte le predisposizioni per un ulteriore bagno. Molto comodi gli spazi esterni, con un locale di circa 30mq quasi in adiacenza all´unità principale, che si può utilizzare come dépendance o garage.
Una residenza che unisce comfort, efficienza energetica e qualità della vita. Questa proprietà rappresenta una rara opportunità per chi desidera vivere in un contesto indipendente, circondato dal verde, senza rinunciare ai vantaggi delle soluzioni costruttive più attuali.
Contattaci per maggiori informazioni o per fissare un appuntamento: saremo lieti di accompagnarti nella scoperta di una villa che ha molto da offrire.
- PropostaOffro
- ContrattoVendita
- Prezzo400.000,00 €
- Vani8
- Mq totali266
- Camere4
- Bagni4
- StatoOttimo stato
- CucinaAngolo cottura
- GiardinoPrivato
- Tipologia immobileCasa indipendente
- ProvinciaRavenna
- ComuneCastel bolognese
- Data22-12-2025 06:19:23
- CodiceEA-E166F6











