Casa Indipendente 8 vani 340mq
269.000,00 €

0 Piace
0 Piace
Dati annuncio : Vendita Casa Indipendente, Meda
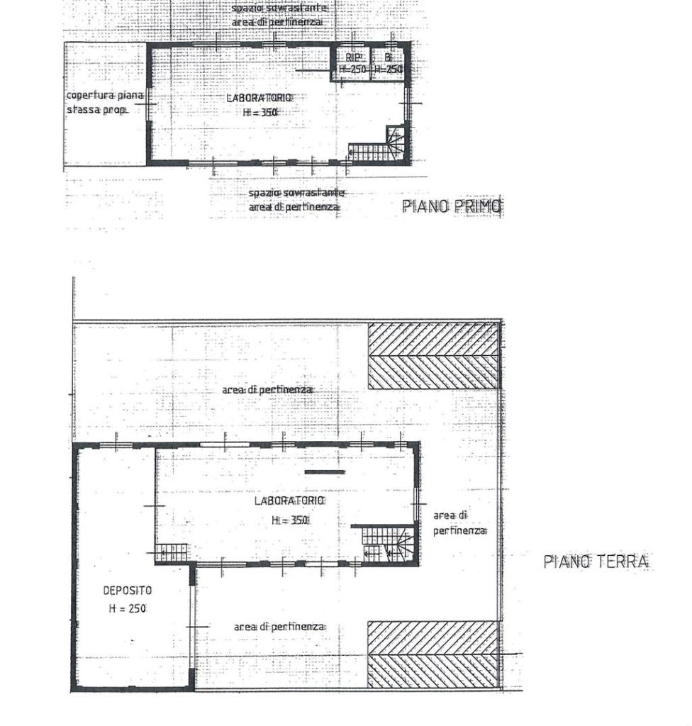
Meda sud, laboratorio di 340 mq totali oltre area esterna di 405 mq. Composizione: lotto di terreno di 625 mq con 2 ingressi carrai che accedono ad un piano terra di 220 mq di cui 120 mq ad uso laboratorio e 100 mq ad uso deposito finestrato su tutti i lati e con altezza 3.50 metri. Vano scala in muratura e montacarichi che accedono al primo piano dove troviamo un laboratorio libero su 4 lati con ufficio e bagno per un totale di 120 mq e un terrazzo di 40 mq. Possibilità di cambio di destinazione d´uso in residenziale per un totale di 1020 metri cubi per la realizzazione di 3/4 appartamenti oltre box e posti auto. Possibilità anche di cambio d´uso del solo piano primo per realizzare un appartamento di 3/4 locali con terrazzo. Rif. 5151
- PropostaOffro
- ContrattoVendita
- Prezzo269.000,00 €
- Vani8
- Mq totali340
- Camere5
- Bagni3
- CucinaCucina abitabile
- TerrazzoSi
- GiardinoPrivato
- Tipologia immobileCasa indipendente
- ProvinciaMonza e brianza
- ComuneMeda
- Data11-12-2025 06:38:19
- CodiceEA-704234











