Casa Indipendente quadrilocale 118mq

Dati annuncio : Vendita Casa Indipendente, Palermo
Casa Indipendente Pressi Piazza Pallavicino
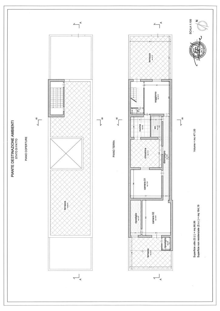
A pochi passi da Piazza Pallavicino e da via Castelforte, proponiamo in vendita una casa indipendente da ristrutturare, composta da 4 vani e una spaziosa terrazza sovrastante. L´immobile, pur necessitando di una ristrutturazione totale, offre ampi spazi e molteplici possibilità di personalizzazione.
La disposizione interna comprende:
• Ingresso nel primo vano, che dà accesso a un corridoio centrale.
• Il corridoio disimpegna due ampie camere matrimoniali, una cameretta, un bagno e una cucina abitabile con affaccio su una chiostrina interna coperta, che garantisce il passaggio di luce naturale e ventilazione.
• Terrazza antistante l’ingresso, delimitata da ringhiera e cancello carrabile, che consente di parcheggiare un´auto.
Un punto di forza dell´immobile è la grande terrazza sovrastante, accessibile tramite il corpo scala, che può essere sfruttata in base alle proprie esigenze, anche per eventuale ampliamento dell´abitazione o come spazio ricreativo.
Altre caratteristiche:
• L´accesso comodo anche in auto dalla strada rende la casa particolarmente adatta anche a persone con mobilità ridotta.
• L´immobile è in regola dal punto di vista urbanistico, mutuabile, e si presta anche a uso diverso dall’abitazione, a seconda delle necessità (ad esempio, ufficio o studio).
Altre informazioni Anno di Costruzione 1966 , mq. commerciali 142 - mq. coperti 118 - terrazza a prospetto con accesso dalla strada mq. 34 - terrazza retro prospetto mq. 20 - terrazza al piano primo mq. 90 - chiostra mq. 17
Un’opportunità interessante per chi cerca una soluzione indipendente con ampi spazi e molteplici potenzialità di utilizzo!
- PropostaOffro
- ContrattoVendita
- Prezzo155.000,00 €
- Vani4
- Mq totali118
- Camere3
- Bagni1
- StatoDa ristrutturare
- CucinaCucina abitabile
- Tipologia immobileCasa indipendente
- ProvinciaPalermo
- ComunePalermo
- Data19-11-2025 05:18:46
- CodiceEA-3EE096











