Casa Semindipendente 8 vani 310mq

Dati annuncio : Vendita Casa Semindipendente, Pontida
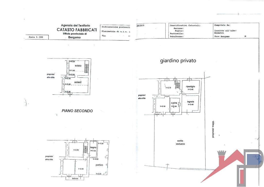
VENDUTO!!!! Pontida in località Valmora, con bellissima vista sulle colline circostanti si propone una porzione di rustico terminale da terra a tetto con ingresso indipendente e con ampio giardino privato su 2 lati; La proprietà é posta su 2 livelli oltre al piano sottotetto ed é composta da P.T. soggiorno, cucina, locale ripostiglio da annettere alla zona giorno, locali legnaia da annettere all´abitazione nella ristrutturazione; 1°Piano: 3 camere, bagno, porticato da recuperare ai fini abitativi, balcone; 2°P.: sottotetto in parte recuperabile; completa la proprietà un giardino privato di ca 417 Mq. posto in parte sul davanti accessibile anche con le auto, in parte sul retro accessibile dall´abitazione. L´immobile é completamente da ristrutturare, presenta delle bellissime caratteristiche in pietra e legno da recuperare, la posizione é ottima, zona residenziale e tranquilla, soleggiata con una bella vista sulle colline, in posizione comodissima per raggiungere la strada statale Bergamo /Lecco. Ottima soluzione ideale per realizzo di ampia abitazione per una famiglia ma che permette anche la realizzazione di una doppia abitazione.
- PropostaOffro
- ContrattoVendita
- Prezzo90.000,00 €
- Vani8
- Mq totali310
- Camere3
- Bagni1
- Classe energeticaG
- Classe energetica (ipe)38095
- Classe energetica (unità di misura)Kwh/m²a
- StatoDa ristrutturare
- CucinaCucina abitabile
- GiardinoPrivato
- Tipologia immobileCasa semindipendente
- ProvinciaBergamo
- ComunePontida
- Data27-11-2025 05:08:47
- CodiceEA-7F4530











