Casa Semindipendente trilocale 146mq

Dati annuncio : Vendita Casa Semindipendente, Cotignola
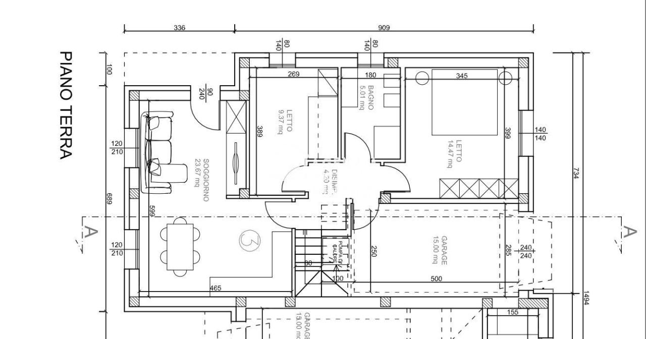
Villetta moderna tutta al piano terra con giardino privato – Barbiano di Cotignola
Barbiano di Cotignola – In posizione tranquilla e immersa nel verde del nuovo quartiere residenziale, proponiamo villetta abbinata di nuova costruzione, libera su tre lati e dotata di ingresso indipendente e giardino privato.
L’abitazione si sviluppa tutta al piano terra, soluzione ideale per chi cerca comfort e funzionalità in un unico livello. Gli spazi interni sono ben distribuiti e si compongono di:
* Soggiorno luminoso con cucina a vista
* 2 camere da letto (una matrimoniale e una singola)
* Bagno finestrato con doccia
* Garage collegato all’abitazione
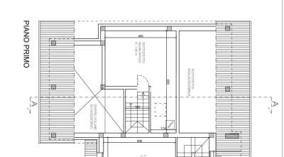
Completa la proprietà un ampio sottotetto con secondo bagno e zona lavanderia, ideale come terza camera, studio.
Caratteristiche tecniche:
* Classe energetica A+
* Riscaldamento a pavimento con pompa di calore
* Impianto fotovoltaico
* Predisposizione per impianto di climatizzazione
* No gas
Finiture moderne e impianti all’avanguardia garantiscono bassi consumi e massimo comfort.
📍 Consegna prevista: primavera 2027
Ideale per giovani coppie o nuove famiglie in cerca di una casa moderna e sostenibile in una zona tranquilla ma ben collegata.
- PropostaOffro
- ContrattoVendita
- Prezzo300.000,00 €
- Vani3
- Mq totali146
- Camere3
- Bagni2
- StatoNuova costruzione
- CucinaCucina a vista
- GiardinoPrivato
- Tipologia immobileCasa semindipendente
- ProvinciaRavenna
- ComuneCotignola
- Data10-10-2025 05:04:29
- CodiceEA-8719ED











