CASENUOVE monolocale 24mq
30.000,00 €
0 Piace
0 Piace
Dati annuncio : Vendita Monovano, Empoli
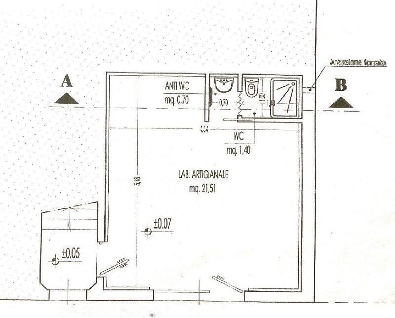
In zona residenziale, tranquilla e con buona possibilità di parcheggio, fondo artigianale ristrutturato recentemente e sito al piano terra di una palazzina storica in buone condizioni di manutenzione. L´immobile per un totale di circa 23 mq è composto da unico vano con antibagno e servizio igienico. L´oggetto è stato sottoposto a trattamento antimuffa ed isolamento anti umidità ed è dotato di allacci acqua e luce. Classe Energetica: G - IPE: 175.00kWh/mc anno
- PropostaOffro
- ContrattoVendita
- Prezzo30.000,00 €
- Vani1
- Numero piani2
- Piano13
- Mq totali24
- Bagni1
- Classe energeticaG
- Classe energetica (ipe)175.0
- StatoBuono
- AscensoreNo
- Tipo costruzioneCommerciale
- TerrazzoNo
- CantinaNo
- RiscaldamentoAutonomo
- DisponibilitLibero
- ProvinciaFirenze
- ComuneEmpoli
- Data18-08-2025 06:03:15
- CodiceEA-CD71B7

