CENTRO bilocale 61mq
Dati annuncio : Vendita Bivani, Calenzano
Rif.491Z
Calenzano, in zona centrale prossima ai principali servizi, proponiamo in vendita appartamento in fase di realizzazione.
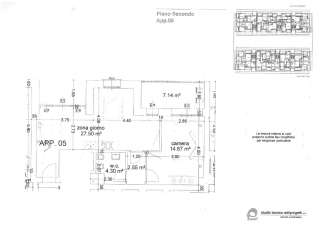
L´immobile posto al piano secondo sviluppa una superficie lorda di mq 61,00 ed è composto da ampio e luminoso soggiorno con angolo cottura, spaziosa camera matrimoniale dalla quale si accede al balcone e bagno.
Completa la proprietà cantina di circa mq 7,00 e posto auto coperto.
Ottimo capitolato con riscaldamento a pavimento, aria condizionata e predisposizioni impianto di allarme e domotica.
La consegna è prevista per Settembre 2025.
Maggiori informazioni, piantine, progetto e rendering in agenzia.
Classe energetica A2.
Richiesta Euro 242.000,00
Già detratto sismabonus.
Per motivi di riservatezza, la posizione geografica inserita sul presente annuncio, indica esclusivamente l´area di ubicazione dell´immobile e non l´indirizzo.
Le metrature inserite sono indicative e non effettive.
Rif. 491Z
PER QUALSIASI INFORMAZIONE CONTATTARE
AGENZIA IMMOBILIARE ZOPPI SAS
055/8879255 - 055/8877483
[email protected]
www.immobiliarezoppi.it Classe Energetica: A4 - IPE: 0.00kWh/mq anno
- PropostaOffro
- ContrattoVendita
- Prezzo242.000,00 €
- Vani2
- Numero piani3
- Piano255
- Mq totali61
- Camere1
- Bagni1
- Classe energeticaA4
- StatoNuovo
- AscensoreSi
- Tipo costruzioneResidenziale
- CucinaAngolo cottura
- TerrazzoNo
- GiardinoNessuno
- CantinaSi
- RiscaldamentoAutonomo
- ArrediNon arredato
- BoxPosto auto esclusivo
- DisponibilitLibero al rogito
- ProvinciaFirenze
- ComuneCalenzano
- Data18-08-2025 06:03:15
- CodiceEA-9507CA











