CENTRO CITTA´ trilocale 300mq
360.000,00 €
0 Piace
0 Piace
Dati annuncio : Vendita Trivani, Grosseto
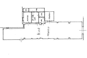
D7PM2913 - Nel centro della città su una delle vie principali vendesi fondo commercial di 250 MQ fronte strada composto da un ampio vano principale e zona ufficio composta da 5 vani con bagno. Possibilità istallazione della canna fumaria, pronta consegna.
- PropostaOffro
- ContrattoVendita
- Prezzo360.000,00 €
- Vani3
- Piano1
- Mq totali300
- Bagni1
- Posti auto1
- StatoBuono
- AscensoreNo
- Tipo costruzioneCommerciale
- TerrazzoNo
- GiardinoNessuno
- CantinaNo
- RiscaldamentoAutonomo
- ArrediArredato
- BoxBox singolo
- DisponibilitLibero
- Spese condominiali15
- Cadenza spese condominialiMensili
- ProvinciaGrosseto
- ComuneGrosseto
- Data02-01-2026 06:38:44
- CodiceEA-2EBCC8








