Centro monolocale 100mq

Dati annuncio : Vendita Monovano, Sesto San Giovanni
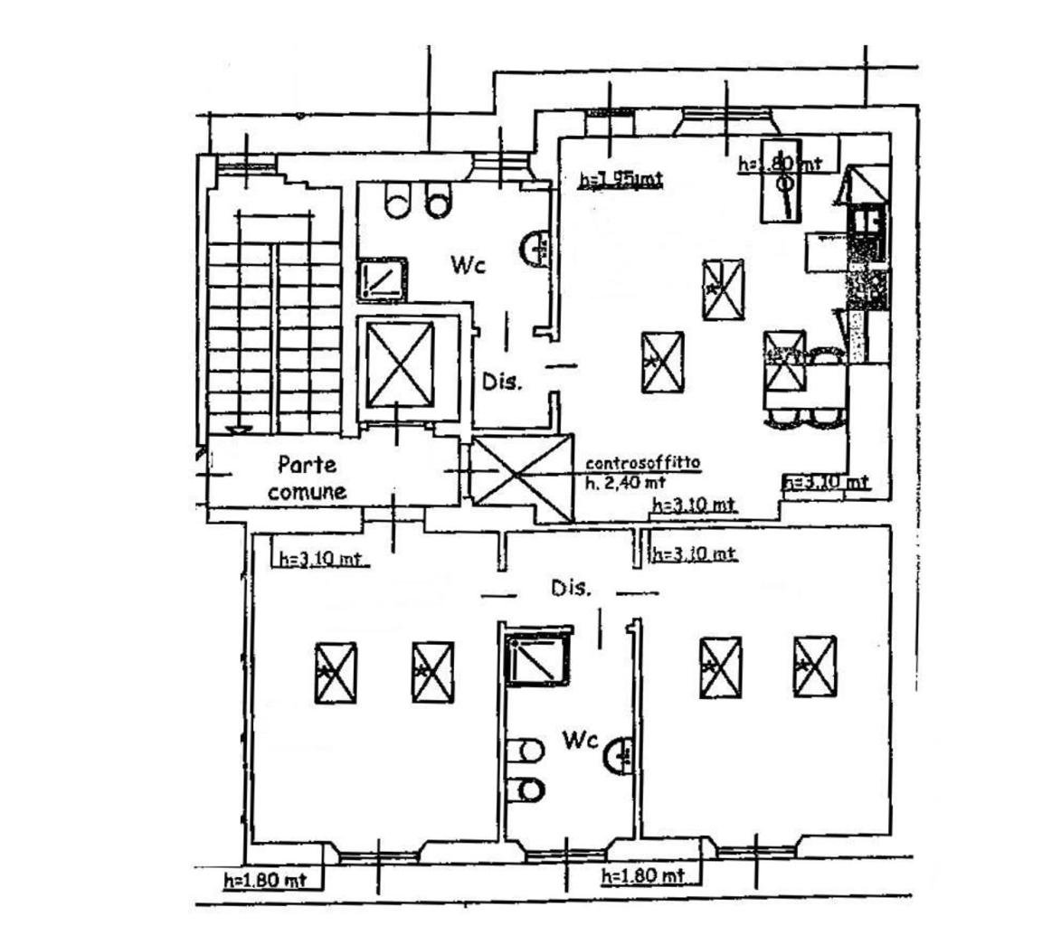
Rif: 3/378 l´abbruzzi gruppo immobiliare propone in sesto san giovanni, zona marelli, in minipalazzina appartamento in mansarda costruito nel 2010 (punto più basso. 1,80mt), composto da: ingresso, ampio soggiorno con angolo cottura, due camere da letto, doppi servizi finestrati e cantina. al prezzo di euro 255.000, 00bellissimo appartamento caratteristico con travi a vista, pavimentazione in parquet, serramenti in legno doppio vetro, aria condizionata e riscaldamento centralizzato a consumo.L’abitazione si trova a pochi passi dalla metro mm marelli, la zona vanta la presenza di numerose attività commerciali di vicinato e supermercati, asili e scuole, ufficio postale e sportelli bancari, farmacia.L´abbruzzi gruppo immobiliare dialessandro l´abbruzzivia fiorani, 119 sesto s. Giovanni (mi)tel. 02.26265020 fax 02/24308819gestiamo la vendita e la locazione dei vostri immobili commerciali, residenziali e industriali!visita il nostro sito e scarica la nostra app.
- PropostaOffro
- ContrattoVendita
- Prezzo255.000,00 €
- Vani1
- Mq totali100
- Camere1
- Bagni2
- StatoOttime condizioni
- AscensoreSi
- RiscaldamentoCentralizzato
- ArrediNon arredato
- ProvinciaMilano
- ComuneSesto san giovanni
- Indirizzo
- Data29-10-2025 06:03:37
- CodiceEA-F5BFCF









