Contrada San Michele 5B 6 vani 145mq
Dati annuncio : Vendita Esavani, Cossignano
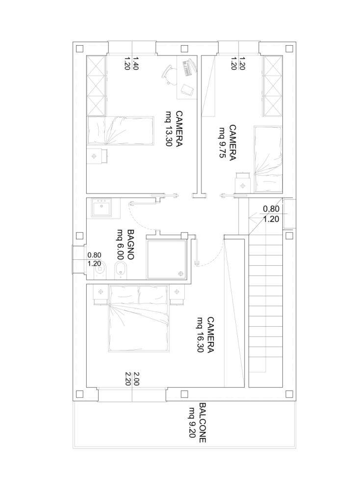
COSSIGNANO - Villino di 140 mq su 2 livelli con soggiorno-cucina, 3 camere e 2 bagni. Le costruzioni saranno realizzate unicamente in bioedilizia, tenendo conto delle caratteristiche del territorio, utilizzando il legno per la struttura portante e canapa per la tamponatura esterna. La canapa ha contemporaneamente funzione di tamponamento, isolante termico, isolante acustico e regolazione dell´umidità interna, garantendo salute e comfort delle persone che ci abiteranno. Gli impianti utilizzano solo fonti di energia rinnovabile (fotovoltaico e solare termico). La villetta può essere progettata e realizzata in base alle specifiche esigenze del cliente variando i metri abitabili e gli spazi accessori, studiando la funzionalità degli ambienti a seconda del personale modo di vivere la casa.
- PropostaOffro
- ContrattoVendita
- Prezzo245.000,00 €
- Vani6
- Mq totali145
- Classe energetica (ipe)0.0
- AscensoreNo
- TerrazzoNo
- GiardinoNs
- CantinaNo
- ProvinciaAscoli piceno
- ComuneCossignano
- IndirizzoContrada san michele 5b
- Data05-08-2025 05:18:00
- CodiceEA-FB7156







