D Via Provinciale Pisana 111 quadrilocale 900mq
Dati annuncio : Affitto D, Livorno
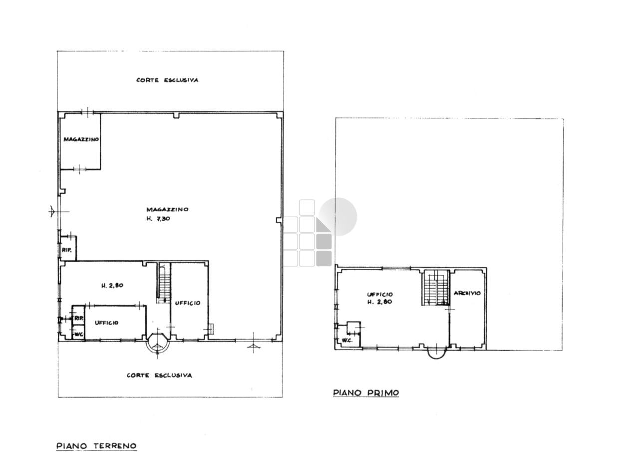
ZONA PICCHIANTI CAPANNONE IN AFFITTO Euro 3.800 mese + iva, Nei pressi dell´uscita autostradale di Livorno proponiamo la locazione di capannone di circa 750 mq di cui 450 mq ad utilizzi logistici, produttivi o magazzino e 300 mq su due piani dedicati a reception, uffici, esposizione, servizi, ecc. Offrendo un layout versatile che facilita l´organizzazione operativa, Il piano terra ha caratteristica comune in strutture di tipo industriale con allocate all´interno due ampie celle frigorifere. La zona di ricezione ed uffici propone quattro vani che permettono facilmente la suddivisione degli spazi per reparti o magazzino. Completano la proprietà la dotazione di due accessi: passo carrabile e cancello elettrico, elementi essenziali per gestione dei carichi quotidiana.
Come dicevamo all´interno troviamo 300 mq di uffici integrati al capannone, oltre a due bagni e spogliatoi, una reception. É presente ´impianto di allarme, così come l´antincendio che dovrà essere adeguato alla fattispecie di attività che andrà ad occupare i locali, elementi chiave per conformità e tranquillità operativa. La luminosità è assicurata dalle ampie finestre, contribuendo a un ambiente di lavoro gradevole durante il giorno. I locali sono provvisti di ´aria condizionata autonoma, garantendo comfort termico indipendente.
Le porte e portoni offrono altezza e larghezza adeguate per movimentazione di carichi di diverse dimensioni, accompagnate da un sistema di accesso controllato. Una particolare forza del patrimonio è la presenza di celle frigorifere, elemento chiave per attività che prevedono surgelazione o conservazione a temperature controllate.
Completa la dotazione un piazzale di buone dimensioni collegato a tutte le aree operative, ideale per operazioni di carico-scarico, stoccaggio temporaneo e manovre di mezzi pesanti. Tutti gli elementi descritti rendono questa soluzione particolarmente adatta ad aziende che cercano flessibilità, sicurezza e efficienza, in un contesto logistico a Livorno. Contattaci per ulteriori dettagli, visitare l´immobile o fissare una visita: siamo disponibili a valutare condizioni di affitto. Disponibile dal 01/02/2026. Riferimento annuncio n. 3499
- PropostaOffro
- ContrattoAffitto
- Prezzo3.800,00 €
- Anno2000
- Vani4
- Numero piani2
- Mq totali900
- Bagni2
- Classe energeticaG
- Classe energetica (ipe)0.0
- StatoBuono
- AscensoreNo
- TerrazzoNo
- GiardinoNs
- CantinaNo
- BoxSi
- Tipologia immobileD
- ProvinciaLivorno
- ComuneLivorno
- IndirizzoVia provinciale pisana 111
- Data02-12-2025 06:18:20
- CodiceEA-EAFFB9











