Immobile Commerciale 10 vani 700mq
195.000,00 €

0 Piace
0 Piace
Dati annuncio : Vendita Immobile Commerciale, Asti
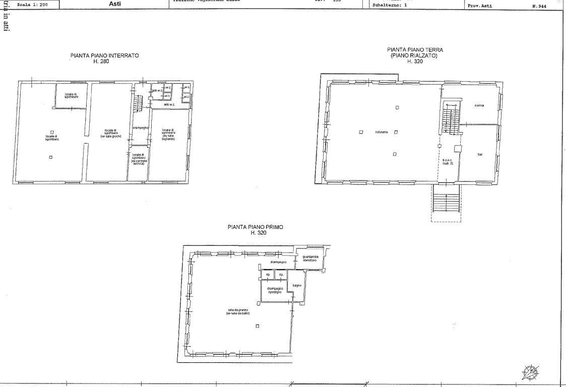
A pochi chilometri da Asti e da Alba sulla provinciale per San Damiano si vende uno storico immobile commerciale già sala da ballo, ristorante e pub con ampio parcheggio privato.
- PropostaOffro
- ContrattoVendita
- Prezzo195.000,00 €
- Vani10
- Mq totali700
- Camere9
- Bagni6
- Classe energeticaG
- Classe energetica (ipe)4385
- Classe energetica (unità di misura)Kwh/m²a
- CucinaCucina abitabile
- GiardinoPrivato
- Tipologia immobileImmobile commerciale
- ProvinciaAsti
- ComuneAsti
- Data31-12-2025 06:13:29
- CodiceEA-1224ED








