Immobile Commerciale 1113mq

Dati annuncio : Affitto Immobile Commerciale, Comun Nuovo
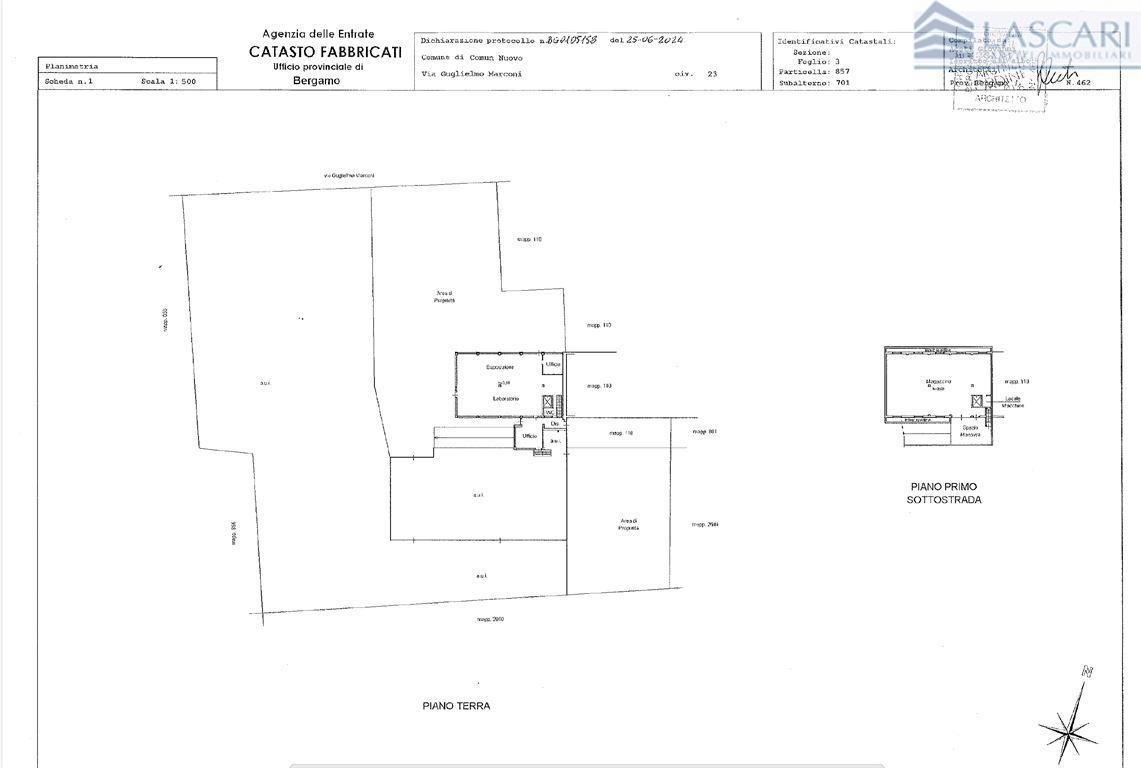
IMMOBILE IDEALE PER USO CONCESSIONARIA AUTO - MOTO - CAMPER. Zona semicentrale nelle immediate vicinanze alla S.P. 42 compendio immobiliare, con struttura in c.a. e mattoni a vista, completamente recintato attualmente utilizzato per attività di vendita di macchinari e attrezzature per giardinaggio, composto da: laboratorio esposizione con sottostante magazzino, adiacente a capannone uso officina. Dotato di ampia area esterna recintata con doppio accesso carrale corrispondente alla seguente descrizione:
Laboratorio esposizione di mq. 284 h.mt. 3,20 con ampie vetrine e porticato, composto da ampio open space espositivo, due uffici, servizi con predisposizione spazio per montacarichi.
Al piano seminterrato magazzino di mq. 274 h.mt. 3,00 con comodo scivolo e accesso carrale. In adiacenza capannone uso officina con servizi di mq. 555 con altezza utile mt. 6,00, con servizi per il personale, oltre ad ampia tettoia. Gli immobili sono dotati di impianto elettrico a norma, impianto di riscaldamento con moduli robur, impianto aria, nell´officina impianto aspirazione fumi. Inoltre all´esterno è presente impianto di lavaggio con vasche di raccolta acque. Area esterna di pertinenza recintata uso parcheggio di mq 3.881.
- PropostaOffro
- ContrattoAffitto
- Prezzo7.500,00 €
- Mq totali1113
- Tipologia immobileImmobile commerciale
- ProvinciaBergamo
- ComuneComun nuovo
- Data01-10-2025 06:06:55
- CodiceEA-25B425











