Immobile Commerciale 403mq
450.000,00 €

0 Piace
0 Piace
Dati annuncio : Vendita Immobile Commerciale, Monopoli
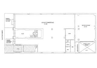
Monopoli, in stabile di recente costruzione, la Prestige Immobiliare propone in vendita un elegante locale commerciale ad uso investimento. Situato al piano terra di una moderna palazzina, l´immobile presenta una superficie di 400 mq e dispone di due ampie vetrine luce, bagni e un locale ad uso deposito con annesso balcone.
Posizionato in una zona ad alta densità di traffico pedonale e carrabile, in prossimità del centro cittadino, questo locale commerciale offre un´ottima visibilità e accessibilità. L´immobile è attualmente locato con un contratto ad uso diverso dall´abitativo con durata 6+6 anni, garantendo un´ottima rendita annuale.
- PropostaOffro
- ContrattoVendita
- Prezzo450.000,00 €
- Mq totali403
- Bagni3
- Classe energeticaA4
- Classe energetica (ipe)1501
- Classe energetica (unità di misura)Kwh/m²a
- Tipo costruzioneCommerciale
- Tipologia immobileImmobile commerciale
- ProvinciaBari
- ComuneMonopoli
- Data13-10-2025 06:11:37
- CodiceEA-1B03FB







