Immobile Commerciale 450mq

Dati annuncio : Vendita Immobile Commerciale, Como
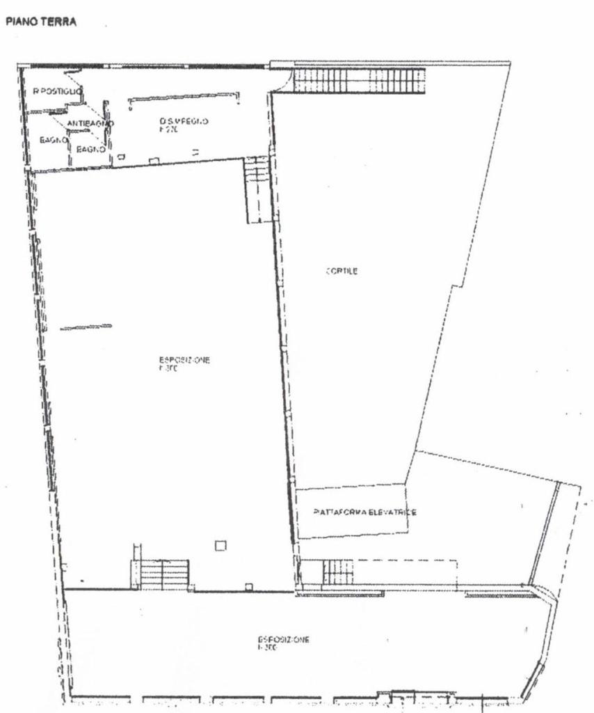
COMO, VIA PASQUALE PAOLI 45 - VENDESI IMMOBILE 450 MQ PT 8 LUCI A REDDITO 8% ca. - Falco Immobiliare propone in vendita un immobile commerciale di 945 mq da 8 vetrine, situato sulla principale arteria di accesso a Como, in una posizione strategica vicino a numerose attività commerciali, tra cui il supermercato Aldi. L´immobile si distribuisce sul piano terreno per 450 mq e comprende inoltre un interrato a uso parcheggio/loc. tecnico da 365 mq, oltre a un primo piano adibito ad archivio da 130 mq. Il negozio è attualmente locato alla multinazionale Leroy Merlin con un contratto con decorrenza a partire da ottobre 2024, al canone di € 90.000 annui. Una sicura rendita per un importante investimento in una location strategica. VENDESI A € 1.150.000
- PropostaOffro
- ContrattoVendita
- Prezzo1.150.000,00 €
- Mq totali450
- Tipologia immobileImmobile commerciale
- ProvinciaComo
- ComuneComo
- Data01-07-2025 05:07:04
- CodiceEA-1762E4











