Industriale 10 vani 1920mq
Dati annuncio : Vendita Industriale, Senigallia
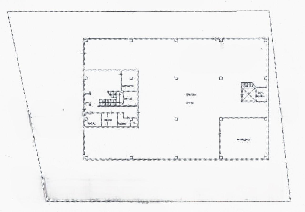
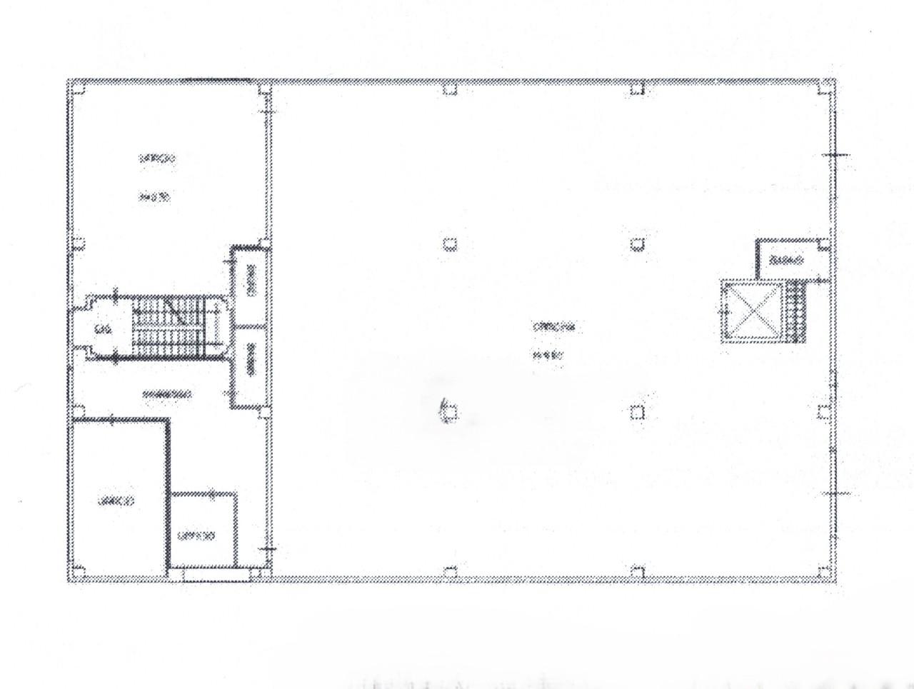
SENIGALLIA - Rif: CA179 - Loc. Marzocca - Vendiamo in esclusiva, capannone industriale indipendente con uffici e corte esclusiva. Si sviluppa su tre livelli. Al piano terra troviamo reception, spogliatoi, bagni e laboratorio-area di produzione di 600 mq circa (altezza sotto-trave 3,25 mt - altezza massima 3,90 mt) - misura porta 4,40 largh. x 3,90 alt.; al primo piano uffici con vista mare e bagni, laboratorio-produzione di 500 mq circa (altezza 6 mt) - 2 porte industriali di 4,50 mt x 4,40 mt. Collegamento montacarichi tra le due aree di produzione. Al terzo piano ulteriori 200 mq di uffici e bagni. Il capannone è fornito di impianto di riscaldamento e condizionamento negli uffici. La struttura dell´intero immobile è quella classica dei capannoni industriali con pilastri e travi in cemento prefabbricati, tamponatura in pannelli prefabbricati, infissi in alluminio elettro-brunito. Le pavimentazioni sono di tipo in cemento industriale nella parte produttiva, mentre nella zona uffici è presente una pavimentazione in ceramica di monocottura. La copertura è di tipo prefabbricato con elementi tegola a pi-greco. Superficie totale uffici 500 mq circa, mentre quella produttiva ha una superficie di 1100 mq. Corte esclusiva 500 mq circa. L´acquisto può essere condiviso da due soci, perchè sono due soluzioni completamente autonome. Prezzo di vendita 660.000 euro + iva. Per informazioni telefonare all´Agenzia VERDENELLI IMMOBILIARE SENIGALLIA tel. 351/ email: [email protected]
- PropostaOffro
- ContrattoVendita
- Prezzo660.000,00 €
- Anno1998
- Vani10
- Numero piani3
- Mq totali1920
- Bagni6
- Classe energeticaC
- Classe energetica (ipe)0.0
- StatoBuono
- AscensoreSi
- TerrazzoNo
- GiardinoNs
- CantinaNo
- RiscaldamentoAutonomo
- PanoramaVista mare
- Tipologia immobileIndustriale
- ProvinciaAncona
- ComuneSenigallia
- CodiceEA-554CC4






