Laboratorio 165mq

Dati annuncio : Vendita Laboratorio, San Donato Milanese
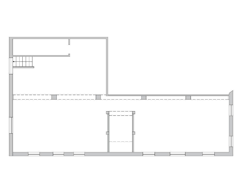
Rif. 692 - In Via Pace, 5, vendesi laboratorio di 165 mq al piano seminterrato con finestre su tre lati, disposto su di un unico livello open space, oltre ad un locale di servizio, altezza del laboratorio m 3,50 Dispone di un cortile comune l’interno del condominio per il carico e scarico dei materiali con un buon spazio di manovra. Il laboratorio è dotato di impianto elettrico, è privo di impianto di riscaldamento.
CLASSE ENERGETICA : non certificabile
CHIAMACI SENZA IMPEGNO PER UNA VISITA 02.51628192.
Se devi VENDERE o AFFITTARE il tuo immobile non esitare a contattarci per una VALUTAZIONE GRATUITA e senza impegno: [email protected]
Inoltre grazie alla collaborazione con i nostri partners presenti da più di vent’anni sul territorio, POSSIAMO SEGUIRTI IN OGNI FASE TECNICA E AMMINISTRATIVA.
Ti seguiamo passo dopo passo per realizzare i tuoi sogni IN SICUREZZA.
SITO: www.treforimmobiliare.it
FACEBOOK: Trefor Immobiliare
AGENZIA: Via J. F. Kennedy, 34, San Donato Milanese
- PropostaOffro
- ContrattoVendita
- Prezzo95.000,00 €
- Mq totali165
- Tipologia immobileLaboratorio
- ProvinciaMilano
- ComuneSan donato milanese
- Data17-10-2025 05:09:12
- CodiceEA-2FDB5E











