Largo della Graziella Ortigia quadrilocale 100mq
350.000,00 €

0 Piace
0 Piace
Dati annuncio : Vendita Quadrivani, Siracusa
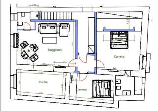
NUOVA COSTRUZIONEC@settepuntoit propone in vendita un lussuoso appartamento di nuova costruzione in zona largo della Graziella. L´immobile é molto ampio e luminoso ed é posto al primo piano disponendo di due balconi, con rifiniture di pregio everrá consegnato come da render grafici, é composto da: cucina-soggiorno in un unico ampio living, camera da letto con ampia finestratura alta, una camera da letto con bagno finestrato e cabina armadio, un bagno grande e accessoriato confinestra. L´appartamento misura 100mq circa e presenta finiture in pietra da intaglio e struttura muraria antisismica.Prezzo di 350mila euro.
- PropostaOffro
- ContrattoVendita
- Prezzo350.000,00 €
- Vani4
- Mq totali100
- Camere4
- Bagni2
- Posti auto1
- StatoOttime condizioni
- ArrediNon arredato
- ProvinciaSiracusa
- ComuneSiracusa
- IndirizzoLargo della graziella
- Data12-12-2025 05:05:48
- CodiceEA-89A7D2









