Locale commerciale 5 vani 300mq
Dati annuncio : Vendita Locale commerciale, San Benedetto del Tronto
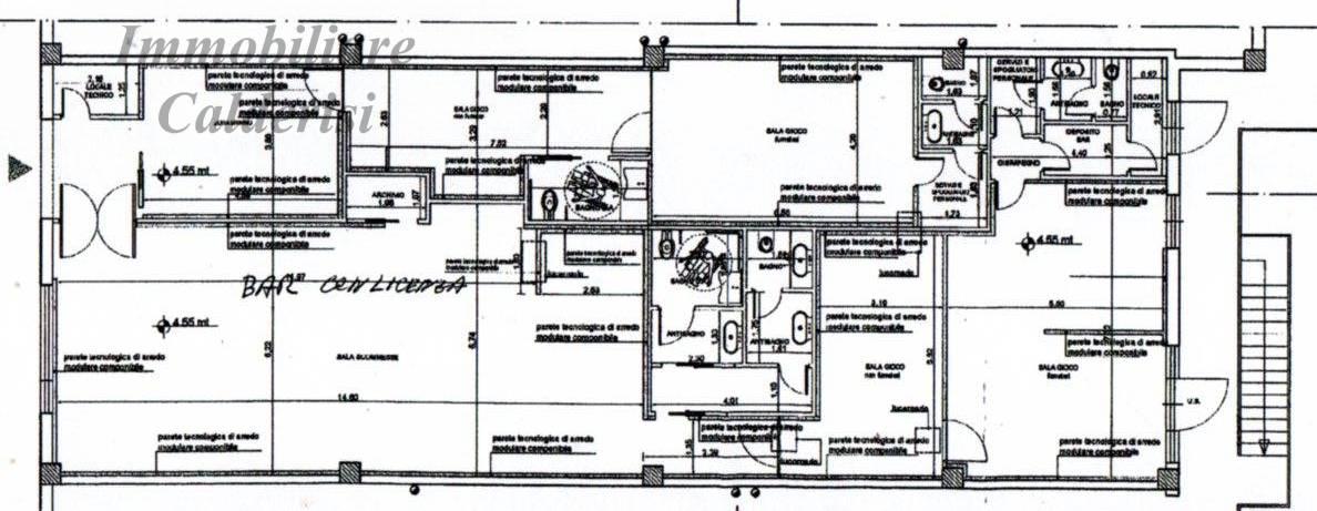
L´agenzia immobiliare Calderisi propone in vendita a San Benedetto del Tronto, precisamente in zona Centro Sud lungo la Statale 16, un ampio locale commerciale al piano terra, libero al rogito e pronto per essere utilizzato. La sua superficie totale di 300 metri quadrati, suddivisa in 5 locali e 4 bagni, ideale per chi desidera avviare un´attivit. Lo stato di conservazione ottimo, grazie anche alla presenza di pannelli che separano le diverse stanze e permettono una migliore organizzazione degli spazi. Il locale si trova in un contesto sulla strada, garantendo una buona visibilit e una facile accessibilit per i clienti. L´immobile dispone di 4 vetrine, che permettono di esporre i propri prodotti in modo accattivante e di attirare l´attenzione dei passanti. Inoltre, presente un sistema di allarme per garantire la sicurezza del locale. Il riscaldamento climatizzato, utilizzando aria o elettricit come combustibile e garantendo un ambiente sempre piacevole e confortevole per i clienti e il personale. Il locale con doppio ingresso sia dal piazzale antistante che dall´ampio piazzale retrostante, l´interno gi attrezzato per un bar, impianto d´aria condizionata con ricambio dell´aria, In sintesi, si tratta di un´ottima opportunit per chi desidera acquistare un locale commerciale in una zona strategica e ben frequentata come il Centro Sud di San Benedetto del Tronto, con tutte le comodit e le caratteristiche necessarie per avviare una nuova attivit con successo. Anche in affitto Agenzia Immobiliare Calderisi 0735 86939 - SC9510007
- PropostaOffro
- ContrattoVendita
- Prezzo500.000,00 €
- Vani5
- Numero piani2
- PianoT
- Mq totali300
- Bagni4
- Classe energeticaF
- StatoOttimo
- AscensoreNo
- Tipo costruzioneCommerciale
- CantinaNo
- ArrediNo
- DisponibilitLibero al rogito
- Cadenza spese condominialiAnnuali
- ProvinciaAscoli piceno
- ComuneSan benedetto del tronto
- Data01-12-2025 05:13:13
- CodiceEA-533E08




