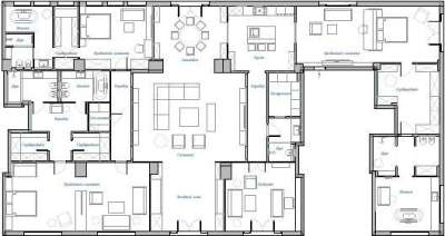
Loft / Open Space 8 vani 414mq

Dati annuncio : Vendita Loft / Open Space, Ventimiglia
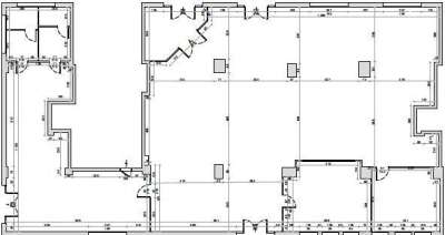
Occasione imperdibile a Ventimiglia in Via Tacito - Locale commerciale ma volendo trasformabile in residenziale , come da planimetri allegata in Vendita - Superfice mq 415 . Prezzo euro 380000 ( inferiore a 1000 euro / mq ) . Siamo lieti di presentarvi una opportunità unica per acquistare un ampio locale commerciale - residenziale , situato a circa 400 metri dal mare . L´immobile volendo , offre tre ingressi distinti che lo rende facilmente frazionabile secondo le richieste ed esigenze. Caratteristiche 415 . mq . / tre ingressi frazionabile / di proprietà ed di pertinenza accesso a 10 posti auto ( valore a singolo posto auto euro 7.000 ) inclusi nel prezzo . Posizione strategica a 300/400 mt dal mare. di fronte attualmente ce una area verde che a breve sarà destinata ad diventare un grande centro commerciale . Ottimo potenziale di investimento . Questa è una vera occasione per chi cerca un immobile versatile da utilizzare come locale commerciale o come residenza . Non perdere l´opportunità di investire in una are ad forte sviluppo . Siamo a disposizione per visite , senza alcun impegno. -
[email protected]
3484104431
Locale ideale per studio o centro medico ( di cui la zona ne è sprovvista )
- PropostaOffro
- ContrattoVendita
- Prezzo380.000,00 €
- Vani8
- Mq totali414
- Camere8
- Bagni2
- Posti auto10
- Tipo costruzioneCommerciale
- Tipologia immobileLoft / open space
- ProvinciaImperia
- ComuneVentimiglia
- Data18-08-2025 05:21:08
- CodiceEA-5AEB66











