Marina di Carrara 1000mq
180.000,00 €

0 Piace
0 Piace
Dati annuncio : Vendita Loft, mansarde e attici, Carrara
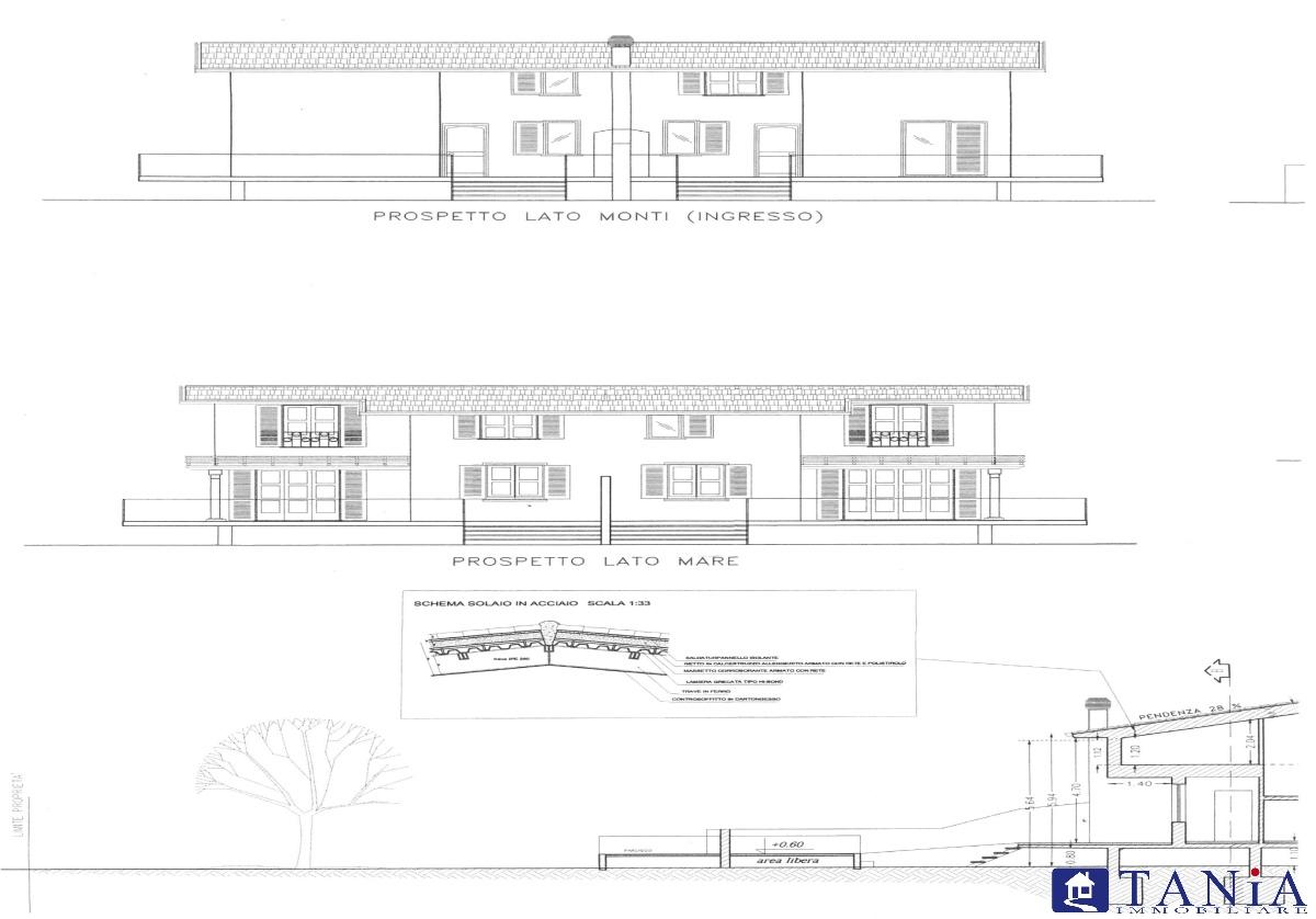
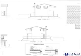
A Marina di Carrara, in zona detta Battilana, si vende un terreno edificabile di superficie 1000 mq. Sul terreno si può costruire una monofamiliare o bifamiliare di 130 mq abitativi più mansarde. SI VENDE CON PROGETTO APPROVATO E ONERI GIA´ PAGATI.\nnelle foto si mostra un progetto di bifamiliare possibile.\nLa posizione è molto bella, soleggiata, comoda a raggiungersi.
- PropostaOffro
- ContrattoVendita
- Prezzo180.000,00 €
- Mq totali1000
- Classe energeticaN.c.
- Tipo costruzione[residenziale, residenziale]
- ProvinciaMassa-carrara
- ComuneCarrara
- Data18-08-2025 05:16:01
- CodiceEA-00311D







