MATASSINO 5 vani 1200mq
Dati annuncio : Vendita Pentavani, Figline e Incisa Valdarno
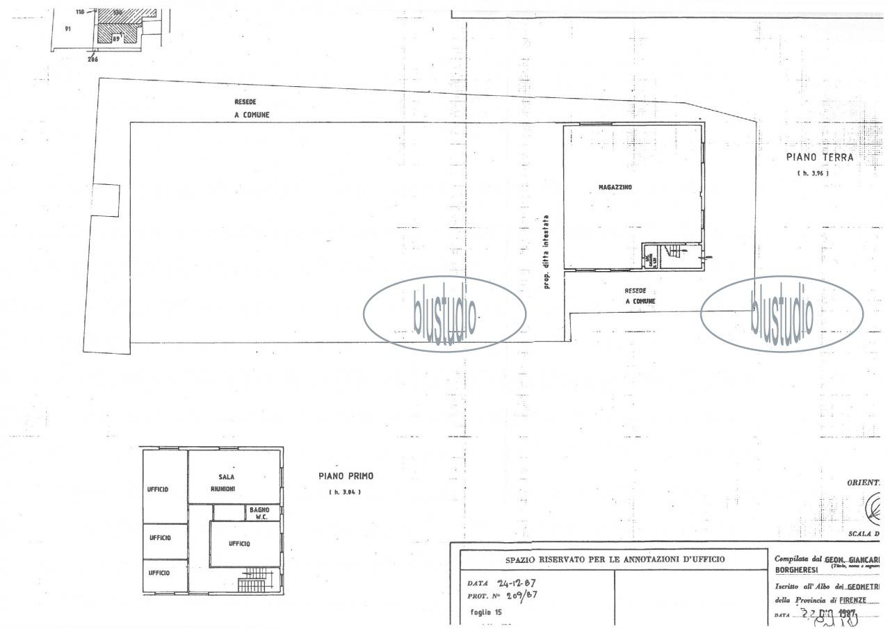
Loc. Matassino, vendesi capannone con palazzina fronte strada adibita ad uffici. Il fabbricato industriale è costituito da un corpo principale a pianta rettangolare e ad un solo piano fuori terra, della consistenza di mq.800 ca, con altezza interna di 6 ml ca; la parte frontale dell´edificio che si affaccia sulla viabilità principale è costituito da una palazzina che si sviluppa su due livelli: al piano terra unico locale di 200 mq ca con altezza interna di 3,96ml a destinazione commerciale, il piano primo è composto da un vano d´ingresso con disimpegno, da 4 uffici, da un´ampia sala riunioni , oltre bagno e antibagno per complessivi 200 mq.ca con altezza interna di ml.3,15c; il piano si raggiunge tramite la scala interna, il cui ingresso principale è sulla viabilità e un ingresso interno dai locali al piano terreno.
Il complesso immobiliare è infine completato da un resede frontale e laterale.
L´immobile necessita di ristrutturazione. L´annuncio contiene rendering fotografici dimostrativi.
Per ulteriori informazioni e per fissare una visita potete contattarci allo 055959418, dalle 9:30 alle 13:00 e dalle 15:00 alle 19:00 dal lunedì al venerdì, oppure inviando una richiesta alla sezione ´´CONTATTI´´.
Lavoriamo da anni sul mercato degli immobili del Valdarno Fiorentino e comuni limitrofi e oggi siamo una realtà consolidata in grado di offrire ai nostri clienti un servizio altamente professionale, consentendo loro di acquistare in modo sicuro la ´´casa dei sogni´´. Saremo a Vostra completa disposizione per trovare, scegliere e consigliare l´immobile che fa al caso Vostro. Classe Energetica: G - IPE: 0.00kWh/mq anno
- PropostaOffro
- ContrattoVendita
- Prezzo295.000,00 €
- Vani5
- Numero piani1
- Piano1
- Mq totali1200
- Classe energeticaG
- StatoDa ristrutturare
- Tipo costruzioneCommerciale
- RiscaldamentoAutonomo
- DisponibilitLibero
- ProvinciaFirenze
- ComuneFigline e incisa valdarno
- Data25-09-2025 05:07:57
- CodiceEA-1F5E14








