monolocale 8494mq
200.000,00 €
0 Piace
0 Piace
Dati annuncio : Vendita Monovano, Colonnella
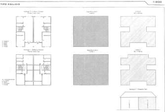
COLONNELLA - con vista mare, in posizione tranquilla immersa nel verde ma a poca distanza dal centro abitato e dalla spiaggia, LOTTO DI TERRENO edificabile a destinazione abitativa di mq. 8500 circa complessivi con progetto di lottizzazione già studiato. La superficie lorda massima edificale è di mq. 2800 con max 2 piani fuori terra e altezza 7,5 m. Sono stati ipotizzati 6 lotti di varie dimensioni con un costo di opere di urbanizzazione stimato per circa 90mila euro. Operazione particolarmente vantaggiosa. Informazioni in ufficio. Rif. 6917 DiLeoImmobiliare
- PropostaOffro
- ContrattoVendita
- Prezzo200.000,00 €
- Anno2025
- Vani1
- Numero piani1
- Mq totali8494
- Classe energeticaNa
- Classe energetica (ipe)0.0
- StatoBuono
- AscensoreNo
- TerrazzoNo
- GiardinoNs
- CantinaNo
- PanoramaVista mare
- ProvinciaTeramo
- ComuneColonnella
- Data18-11-2025 06:44:04
- CodiceEA-B228A3










