MONTENERO 320mq
Dati annuncio : Vendita Case, Castel del Piano
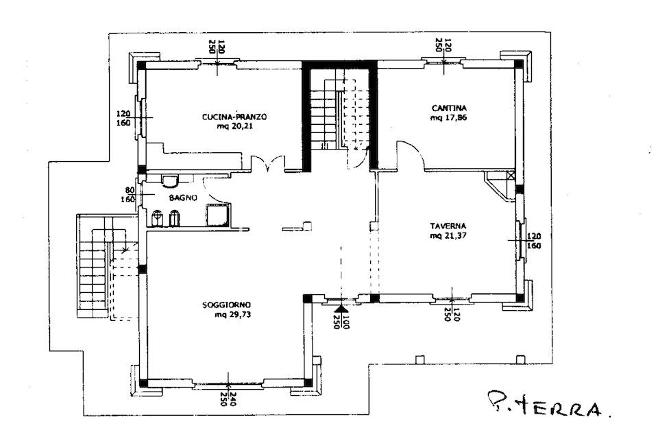
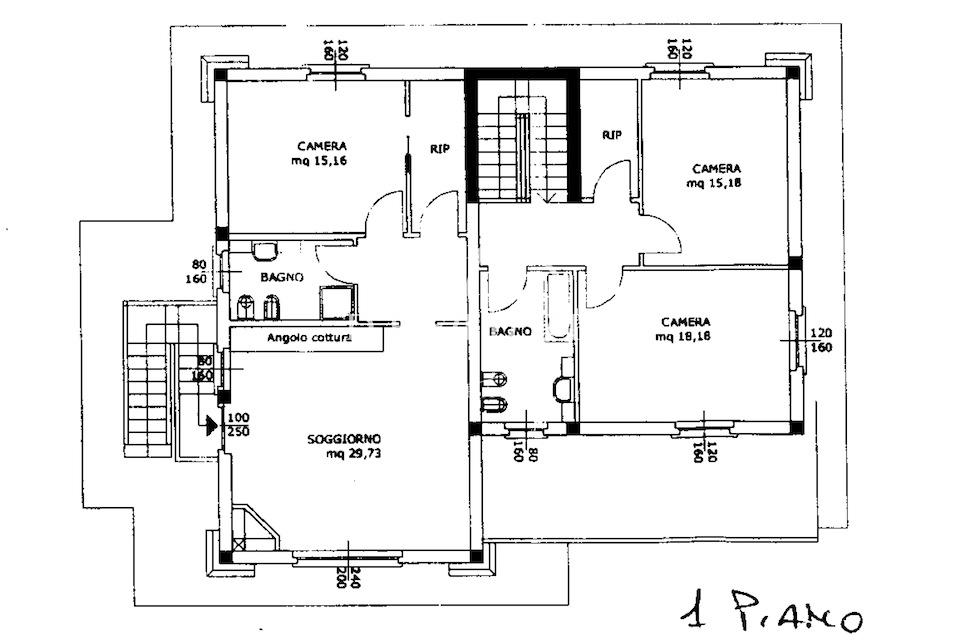
Sulle colline della Val d´Orcia, davanti al castello della Velona e in prossimita´ dell´Abbazia di Sant´Antimo, vendesi terreno edificabile di 1 ettaro con progetto approvato per edificare un magnifico casale di 320 mq. su due livelli. Nella campagna Toscana, fra le dolci colline della Val d´Orcia, in posizione dominante con una magnifica vista che spazia a 360° senza alcun disturbo visivo, terreno di 10.000 mq con accesso tramite strada privata. Su questo terreno e´ stato approvato un progetto per edificare una nuova costruzione su due livelli che oltre ad una vocazione residenziale puo´ essere adibita anche come B&B, o struttura ricettiva di charme. Attualmente il progetto prevede al piano terra, un doppio salone e sala da pranzo che si affacciano sulla cucina abitabile di grandi dimensioni. Sempre a Piano terra, uno studio, bagno e ripostiglio. All´esterno ampio portico su cui si affaccia la zona giorno. Al piano superiore, tre camere matrimoniali con cabina armadio e doppi servizi, oltre a zona lettura/studio. Soffitta agibile con terrazza panoramica. La zona e´ fra le piu´ prestigiose della Toscana, con Montalcino a soli 15 km, 4 km da Montenero, e 1 ora di auto per raggiungere Siena, oppure Saturnia o il mare della Maremma. Dolci colline, clima mite, natura incontaminata. Ubicazione fascinosa, tranquilla ma non isolata, con altre residenze vicine, ma con privacy assicurata. Il casale, edificabile su due livelli, puo´ anche essere diviso in due unita´ immobiliari, indipendenti. Il progetto puo´ essere variato in corso d´opera in virtu´ delle esigenze della clientela.
Classe Energetica: G - IPE: 175.00kWh/mc anno
- PropostaOffro
- ContrattoVendita
- Prezzo260.000,00 €
- Numero piani1
- Mq totali320
- Camere4
- Bagni3
- Unità condominiali1
- Classe energeticaG
- Classe energetica (ipe)175.0
- StatoOttimo
- AscensoreNo
- Tipo costruzioneResidenziale
- CucinaAbitabile
- TerrazzoSi
- GiardinoPrivato
- CantinaNo
- RiscaldamentoAutonomo
- ArrediNon arredato
- BoxNessuno
- DisponibilitLibero
- ProvinciaGrosseto
- ComuneCastel del piano
- Data05-07-2025 05:50:34
- CodiceEA-A90215











