Negozio 100mq
100.000,00 €

0 Piace
0 Piace
Dati annuncio : Vendita Negozio, Limbiate
Ci troviamo a Limbiate, in zona centrale e di passaggio.
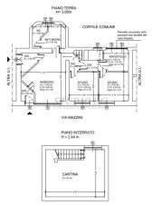
La soluzione che proponiamo in vendita è sita al piano terra, si sviluppa su una metratura di 100 mq totale ed è così composta: ingresso su open space con una luce su strada, ripostiglio, tre uffici e bagno. Tramite scala interna si accede al piano seminterrato dove troviamo la cantina.
Doppio ingresso indipendente, da strada e da cortile interno.
DA VEDERE!! EURO 100.000,00.
Per ulteriori informazioni o per prenotare una visione contattateci allo 02 99 056343 oppure venite a trovarci nel nostro ufficio di Limbiate, viale Piave 42.
- PropostaOffro
- ContrattoVendita
- Prezzo100.000,00 €
- Mq totali100
- Bagni1
- Classe energeticaG
- Classe energetica (ipe)172
- Classe energetica (unità di misura)Kwh/m²a
- Tipologia immobileNegozio
- ProvinciaMonza e brianza
- ComuneLimbiate
- Data18-08-2025 05:21:08
- CodiceEA-6396A6











