Negozio 174mq
6.700,00 €

0 Piace
0 Piace
Dati annuncio : Affitto Negozio, Milano
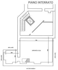
MILANO, VIA GOLDONI 36, ANG. VIA MENOTTI - Falco Immobiliare propone IN LOCAZIONE negozio con ottima visibilità grazie a 4 vetrine e 2 finestre. La superficie al pianterreno è di circa 174 mq, con ulteriori 60 mq al piano interrato ad uso magazzino. Il negozio è dotato di canna fumaria, rendendolo adatto ad attività di ristorazione. IN LOCAZIONE A 80.400 euro annui oltre spese e Iva.
- PropostaOffro
- ContrattoAffitto
- Prezzo6.700,00 €
- Mq totali174
- Bagni2
- Tipologia immobileNegozio
- ProvinciaMilano
- ComuneMilano
- Data30-09-2025 06:07:52
- CodiceEA-43A49C