Negozio 330mq
1.700.000,00 €

0 Piace
0 Piace
Dati annuncio : Vendita Negozio, Milano
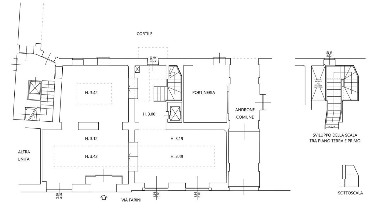
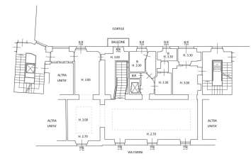
MILANO, VIA FARINI 72 - VENDESI NEGOZIO 4 LUCI 330 MQ - Falco Immobiliare propone ampio negozio in una via a forte passaggio pedonale e automobilistico, di fronte alla fermata del tram. L´immobile si sviluppa su più livelli: 150 mq ca pianterreno, 180 mq ca al primo piano collegato con un´ascensore e un´ampia scala. Completa l´offerta un piano interrato di 120 mq ca. L´immobile si presenta in buono stato interno. TRATTATIVE RISERVATE
- PropostaOffro
- ContrattoVendita
- Prezzo1.700.000,00 €
- Mq totali330
- StatoBuono stato
- Tipologia immobileNegozio
- ProvinciaMilano
- ComuneMilano
- Data14-11-2025 06:04:54
- CodiceEA-5930B5











