Negozio 6 vani 330mq
9.000,00 €

0 Piace
0 Piace
Dati annuncio : Affitto Negozio, Milano
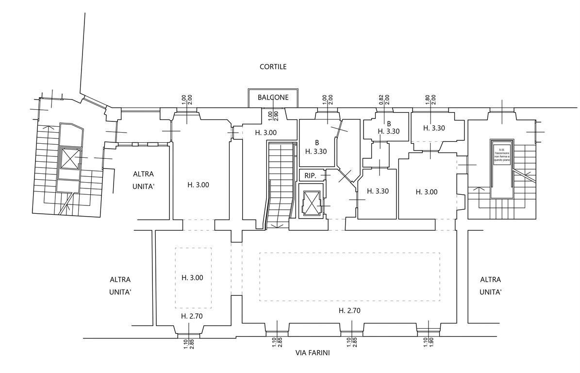
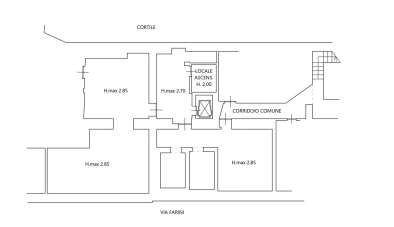
MILANO, VIA FARINI adiacenze Stelvio vicinanza Carrefour / Upim/ Mc Donalds / Unieuro ecc. - AFFITTASI NEGOZIO 4 LUCI 330 MQ - Falco Immobiliare propone ampio negozio in una via a forte passaggio pedonale e automobilistico, di fronte alla fermata del tram. L´immobile si sviluppa su più livelli: 150 mq ca pianterreno, 180 mq ca al primo piano collegato con ascensore e un´ampia scala. Completa l´offerta un piano interrato di 120 mq ca. L´immobile si presenta in buono stato interno. TRATTATIVE RISERVATE
Contatta FALCO IMMOBILIARE per trovare un negozio: www.falcoimm.it
- PropostaOffro
- ContrattoAffitto
- Prezzo9.000,00 €
- Vani6
- Mq totali330
- Bagni2
- Classe energeticaG
- Classe energetica (ipe)65
- Classe energetica (unità di misura)Kwh/m²a
- StatoBuono stato
- Tipologia immobileNegozio
- ProvinciaMilano
- ComuneMilano
- Data14-11-2025 06:04:54
- CodiceEA-31F14D











