Negozio 7 vani 217mq

Dati annuncio : Vendita Negozio, Ravenna
Scopri questa opportunità commerciale situata nel cuore di Savarna, in posizione strategica con un ampio parcheggio proprio sul fronte, ideale per accogliere i tuoi clienti.
Caratteristiche principali:
- Superficie totale: 84 mq di negozio + 70 mq di capannone
- Stato: Originario (necessita di lavori di ristrutturazione)
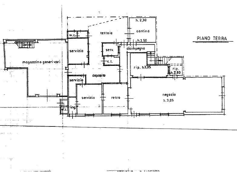
COMPOSIZIONE:
NEGOZIO
-Ampia area espositiva e di vendita di 84 mq, perfetta per valorizzare i tuoi prodotti.
- Retro: Spazio funzionale per le operazioni di gestione.
- 4 locali di servizio: Ideali da utilizzare come uffici, magazzini o aree di riposo per il personale.
- 2 ripostigli: Per ottimizzare l´organizzazione degli spazi.
- Cantina: Utile per lo stoccaggio.
- 2 bagni: Servizi a disposizione per il personale e i clienti.
CAPANNONE
- Superficie di 70 mq, ideale per magazzino o laboratorio, con accesso diretto dal negozio.
- Soppalco di 45 mq: Offre ulteriore spazio per stoccaggio o per attività aggiuntive, con possibilità di personalizzazione.
Questo negozio e capannone rappresentano una soluzione versatile per artigiani, commercianti o imprenditori in cerca di uno spazio che possa crescere con le proprie necessità. Le potenzialità di questo immobile sono immense, perfette per chi desidera avviare o ampliare la propria attività in un´area in forte sviluppo.
- PropostaOffro
- ContrattoVendita
- Prezzo80.000,00 €
- Vani7
- Mq totali217
- Classe energeticaG
- Classe energetica (ipe)14082
- Classe energetica (unità di misura)Kwh/m²a
- GiardinoPrivato
- Tipologia immobileNegozio
- ProvinciaRavenna
- ComuneRavenna
- Data24-08-2025 06:06:36
- CodiceEA-84ADDF











