Negozio 70mq

95.000,00 €
0 Piace
0 Piace

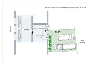
UNITÀ COMMERCIALE IN VENDITA - CONCOREZZO, VIA LIBERTÀ 179 Acquistare un immobile a reddito rappresenta una scelta sicura per chi desidera un investimento con una rendita garantita e una valorizzazione patrimoniale nel tempo. Questa unità immobiliare, situata nel cuore di Concorezzo, in via Libertà 179, offre una posizione di prestigio in un contesto urbano consolidato e vivace. Attualmente locato a una primaria società, l´immobile garantisce una rendita stabile e continuativa, consentendo all´investitore di ottenere un ritorno immediato senza doversi preoccupare della ricerca di un conduttore affidabile. La presenza di un contratto di locazione attivo riduce il rischio e assicura una gestione semplificata dell´investimento. Oltre all´uso commerciale, la configurazione dell´unità la rende ideale anche come studio professionale. Grazie alla distribuzione degli spazi e alla posizione strategica, l´immobile si presta perfettamente per studi medici, uffici legali, commercialisti, società di consulenza e attività professionali che necessitano di visibilità e facilità di accesso. POSIZIONE E ACCESSIBILITA´ Concorezzo è un comune di circa 16.099 abitanti, situato a ridosso di Monza e a breve distanza da Milano. L´unità in vendita si trova in una posizione strategica, nel centro storico del paese, lungo l´asse commerciale principale. Il contesto è caratterizzato da un equilibrio tra attività commerciali, servizi pubblici e residenze, che garantisce un elevato passaggio pedonale e una clientela costante. L´accessibilità è uno dei punti di forza dell´immobile. La zona è facilmente raggiungibile grazie alla presenza della strada provinciale SP2 Monza-Trezzo e della Tangenziale Est di Milano A51, con uscita a soli un chilometro di distanza. L´autostrada A4 Milano-Venezia è raggiungibile in pochi minuti, con il casello di Agrate situato a quattro chilometri. Il trasporto pubblico è efficiente e ben strutturato. La fermata dell´autobus più vicina si trova a soli 600 metri e garantisce collegamenti diretti con Monza, Vimercate, Trezzo, Cologno Nord (metropolitana M2) e Cascina Gobba (metropolitana M2). Inoltre, a circa sette chilometri sono situate le stazioni ferroviarie di Monza e Arcore, che permettono di raggiungere comodamente Milano Porta Garibaldi e Lecco. Un ulteriore vantaggio è rappresentato dalla presenza di parcheggi pubblici nelle immediate vicinanze, che facilitano l´accesso all´immobile sia per i clienti di un´attività commerciale sia per i professionisti che potrebbero utilizzarlo come ufficio. CARATTERISTICHE DELL´ IMMOBILE L´unità si trova al piano terra di una palazzina storica, recentemente oggetto di importanti interventi di manutenzione, tra cui il rifacimento della copertura e il miglioramento delle parti condominiali. L´architettura dell´edificio e la distribuzione interna degli spazi conferiscono all´immobile grande versatilità e lo rendono adatto sia per un utilizzo commerciale sia per uno studio professionale. L´unità immobiliare ha una superficie commerciale totale di 70 metri quadrati, articolata nei seguenti ambienti: - un negozio di 70 metri quadrati, con doppia vetrina affacciata su un portico pedonale di proprietà, che garantisce ottima visibilità, con locale adiacente adibito a magazzino, dotato di servizi igienici con antibagno e bagno finestrato - un´area esterna privata di situata sul retro del negozio, con possibilità di parcheggio per due automezzi e un motoveicolo, accessibile da via C. Battisti - una cantina al piano interrato di 24 metri quadrati, suddivisa in due vani e accessibile dall´area cortilizia condominiale tramite una scala. Grazie alla sua configurazione, l´immobile si adatta perfettamente alle esigenze di diverse tipologie di attività, garantendo flessibilità e possibilità di personalizzazione. - Perché investire in questo immobile L´elemento più rilevante di questa opportunità è la presenza di un contratto di locazione attivo con un conduttore affidabile, che assicura una rendita stabile nel tempo. Per un investitore, questo rappresenta un vantaggio significativo, in quanto elimina il rischio di periodi di inattività e consente di ottenere un ritorno economico immediato. Dal punto di vista della valorizzazione patrimoniale, l´immobile beneficia di una posizione di pregio in un mercato immobiliare caratterizzato da stabilità e alta domanda. Il mix tra centralità, qualità dell´edificio e destinazione d´uso commerciale fa di questa unità una soluzione ideale per chi cerca un investimento sicuro e con prospettive di crescita nel lungo periodo. In un mercato in cui gli asset immobiliari di qualità diventano sempre più rari, questa proposta si distingue per solidità, sicurezza e potenzialità di rivalutazione nel tempo. Contatti e informazioni La vendita è gestita in esclusiva, per ricevere ulteriori informazioni, documentazione dettagliata e valutare questa opportunità, contatto diretto Immobiliare Santalfredo Telefono o WhatsApp - SC

  • PropostaOffro
  • ContrattoVendita
  • Prezzo95.000,00 €
  • Numero piani1
  • PianoT
  • Mq totali70
  • Bagni1
  • Classe energeticaD
  • Classe energetica (ipe)362,34 kwh/m3
  • AscensoreNo
  • Tipo costruzioneDi prestigio
  • CantinaSi
  • RiscaldamentoAutonomo
  • ArrediNo
  • BoxPosto auto scoperto
  • Spese condominiali480
  • Cadenza spese condominialiAnnuali
  • ProvinciaMonza e brianza
  • ComuneConcorezzo
  • CodiceEA-0F9668