Negozio bilocale 160mq
90.000,00 €

0 Piace
0 Piace
Dati annuncio : Vendita Negozio, Padenghe sul Garda
Padenghe sul Garda,
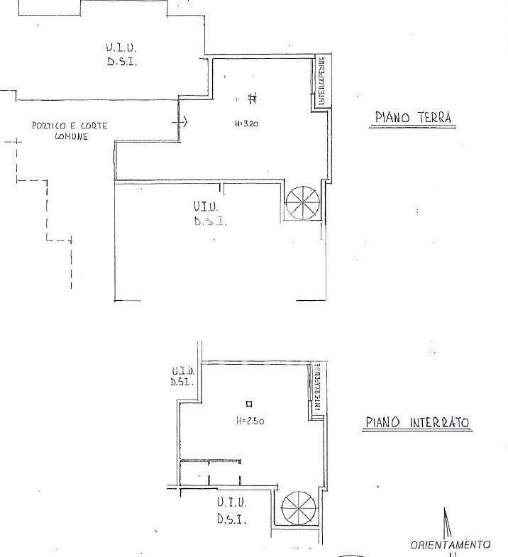
in centro storico con un ampio parcheggio pubblico nelle vicinanze, locale commerciale di ca. 80 mq con entrata indipendente ed ampie vetrate situato al piano terra, collegato internamente al piano interrato di 80 mq ca. Ottimo sia per uso ufficio sia come negozio.
Per qualsiasi informazione aggiuntiva rivolgersi in agenzia,
Rif. LC003
Padenghe sul Garda:
Piccolo e tranquillo paese situato sulla sponda ovest del lago di Garda, incastonato tra il lago e le colline della Valtenesi. Tra incredibili filari di vigne ed uliveti, Padenghe sul Garda, dominata dal suo castello, una fortezza medievale risalente al XXII secolo dalla quale si gode di una vista impareggiabile, é una vera perla nascosta del Lago di Garda.
- PropostaOffro
- ContrattoVendita
- Prezzo90.000,00 €
- Vani2
- Mq totali160
- Bagni1
- Classe energeticaG
- Classe energetica (ipe)375
- Classe energetica (unità di misura)Kwh/m²a
- Tipo costruzioneCommerciale
- Tipologia immobileNegozio
- ProvinciaBrescia
- ComunePadenghe sul garda
- Data08-11-2025 05:46:16
- CodiceEA-D255C2











