Negozio bilocale 200mq

Dati annuncio : Vendita Negozio, Pesaro
Rif. 4239 – PESARO (PU)
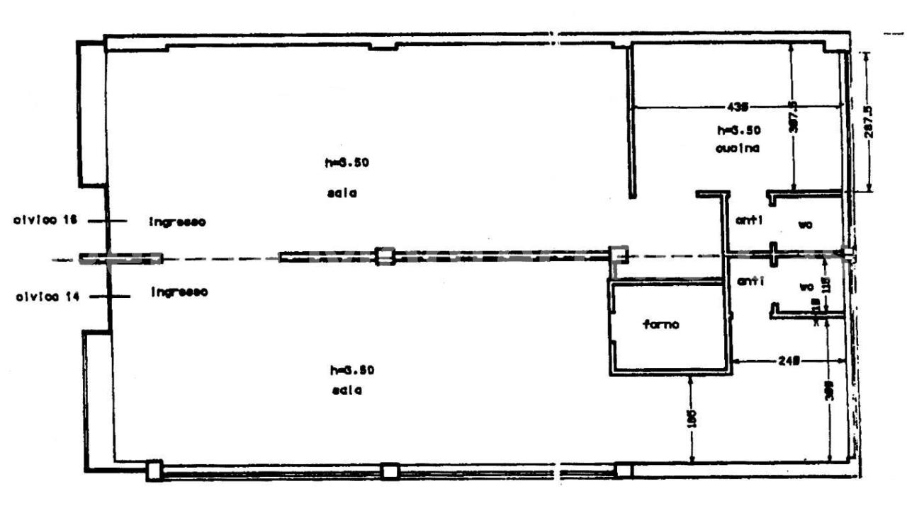
A pochi minuti dal cuore di Pesaro, in una zona residenziale con un buon passaggio e ottima visibilità, proponiamo due negozi adiacenti di 100 mq ciascuno, disponibili da subito.
Gli immobili, in ottimo stato di manutenzione, rappresentano una soluzione ideale per chi cerca un ampio locale nel quale esercitare la propria attività.
I punti di forza:
✅ Posizione strategica e molto visibile
✅ Ottimo stato generale
✅ Ideali per investimento o uso diretto
✅ Possibilità di dividere le due unità per due diverse attività.
Non lasciarti sfuggire questa doppia occasione!
L’ubicazione in mappa non rispecchia per questione di privacy l’esatta posizione dell’immobile.
La superficie indicata è intesa come superficie commerciale dell´insieme.
Contattaci subito per ricevere maggiori informazioni
- PropostaOffro
- ContrattoVendita
- Prezzo290.000,00 €
- Vani2
- Mq totali200
- Bagni2
- Classe energeticaF
- Classe energetica (ipe)11532
- Classe energetica (unità di misura)Kwh/m²a
- StatoOttimo stato
- CucinaCucina abitabile
- Tipologia immobileNegozio
- ProvinciaPesaro e urbino
- ComunePesaro
- Data27-10-2025 05:04:40
- CodiceEA-EBF58A







