Negozio bilocale 70mq

Dati annuncio : Affitto Negozio, Firenze
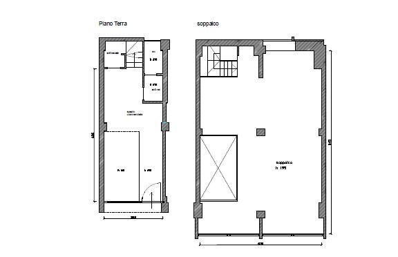
Affittasi nuovo Negozio pressi la Stazione Centrale città di Firenze70 mq .Il fondo commerciale è completamente climatizzato adatto a vari usi NO CANNA FUMARIA , posto su due livelli con SERVIZIO. Libero da subito, perfettamente collegato dai mezzi pubblici ultima arrivata la tranvia ,a ridosso di tutti i principali servizi, adatto a vari usi professionali ideale per ufficio di professionista, adatti in generis per coworking .Ambienti con due ampi sporti su strada, termo centralizzato classe energetica G-APE 175KWH/ TEL 334/ .
Casaexpress immobiliare è un´agenzia situata nel centro storico di Firenze ,che si distingue per professionalità e serietà nel campo delle locazioni e compravendite immobiliari . Soddisfiamo in tempi rapidi ogni esigenza della nostra clientela. Contatta l´Agenzia con il servizio ´´Invia Richiesta´´. L´agenzia offre servizi di assistenza ai propri clienti nella consulenza sull´investimento immobiliare, si affianca della collaborazione di validi professionisti per la relazione tecnica redatta da un tecnico iscritto all´ albo necessaria al trasferimento perizia energetica (IPE) assistenza fino al rogito notarile , visure catastali richiesta documentazione catastale, notarile e condominiale stesura della perizia estimativa consulenze
- PropostaOffro
- ContrattoAffitto
- Prezzo1.150,00 €
- Vani2
- Mq totali70
- Bagni2
- Classe energeticaG
- Classe energetica (ipe)175
- Classe energetica (unità di misura)Kwh/m²a
- Tipologia immobileNegozio
- ProvinciaFirenze
- ComuneFirenze
- CodiceEA-290108






